• imageHD2024-06-06_090449.jpg
  • imageHD2024-06-06_091324.jpg
  • DIANA axo rdc.jpg
  • DIANA axo etage.jpg
  • DIANA interieur.jpg
  • diana rdc.jpeg
  • diana r1.jpeg
7
125 m² Terrain de 580 m² 6 pièces 4 chambres 2 sdb / sde

Jolie parcelle sur Sennecé à 2 pas de Mâcon

298 300 €
Référence : 3686298

Jolie parcelle de Terrain à Sennecé, proche de Mâcon et de toutes les commodités.

Le modèle DIANA a une superficie habitable de 125 m².
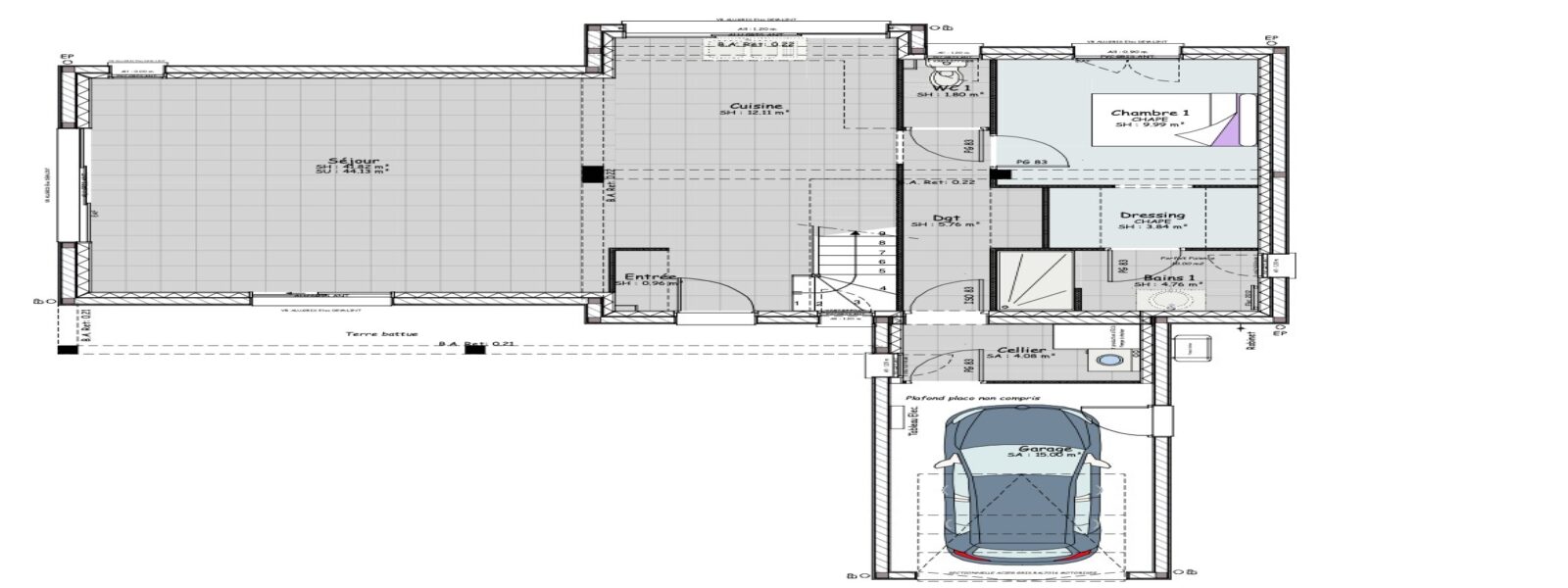
Le rez-de-chaussée se compose d'un vaste séjour avec cuisine ouverte, d'un beau cellier communiquant dans le grand garage de 30 m², d'un wc, d'une chambres salle d'eau privative équipé entre autre d'une douche à l'italienne.
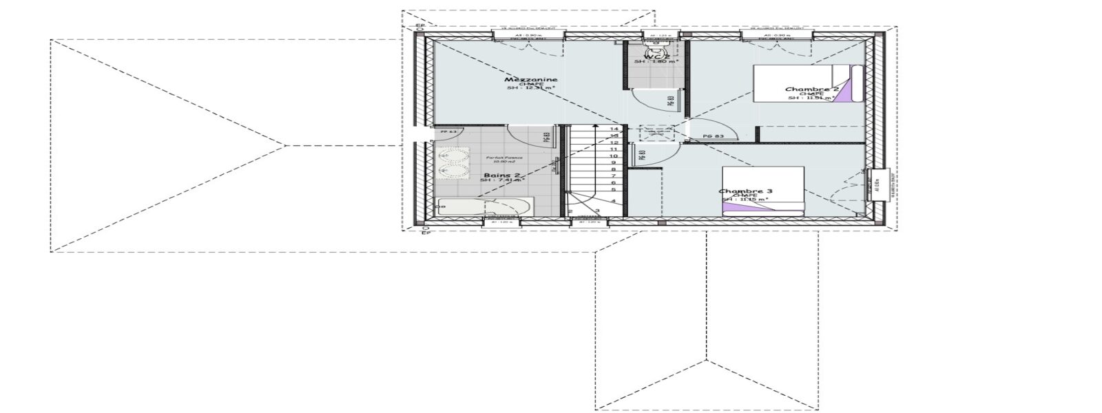
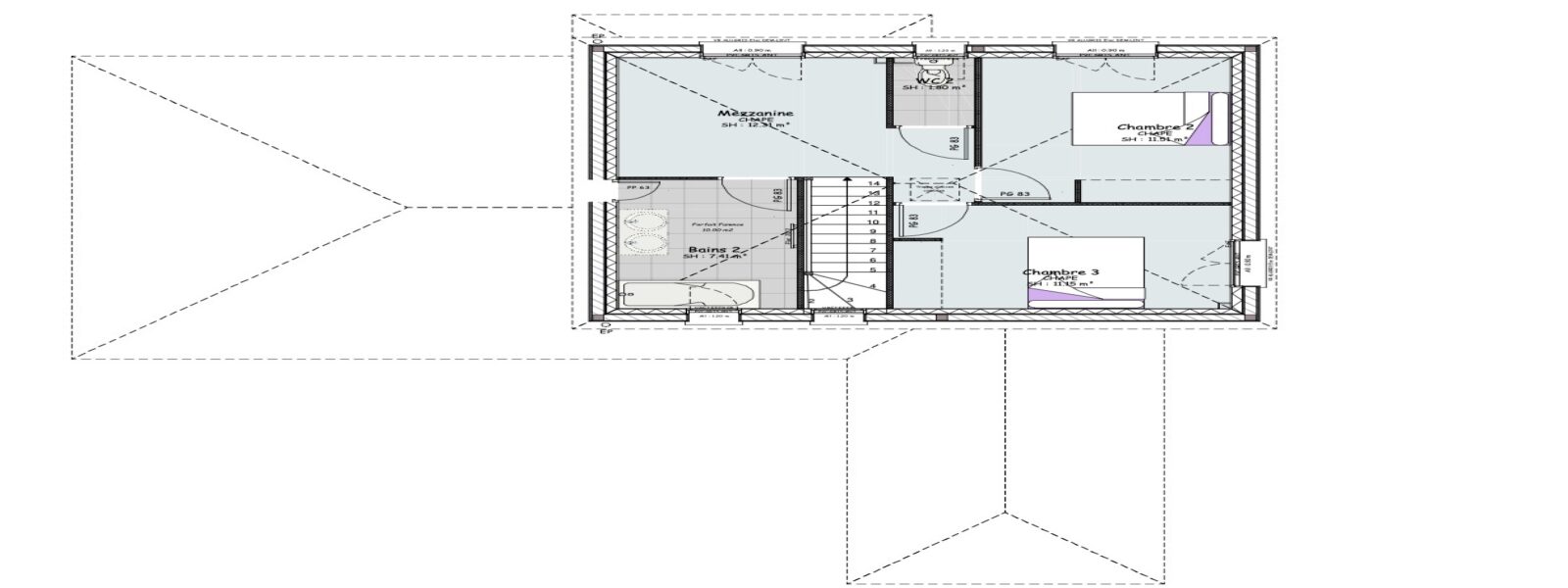
A l'étage se trouvent deux grandes chambres de 12 m², un bureau, un wc et une salle de bain avec une deuxième douche à l'italienne.
Porte de garage sectionnelle de 3 mètres de large motorisée, volets roulants électriques, chauffage PAC air/eau + plancher chauffant, domotique SOMFY, ... Tout est pensé pour votre confort.
À noter que vous pouvez personnaliser l'ensemble des prestations et finitions.

Prix non contractuel et donné à titre indicatif. Il s’entend hors raccordement, adaptation au sol et à l’urbanisme en fonction du lieu de construction déclaré et de ses contraintes techniques. Ce prix inclus un chauffage RE2020 PAC air/eau. Les revêtements de murs, sols des chambres et plafonds sont optionnels. L'assurance Dommage Ouvrage est comprise dans le prix.

Simulation gratuite

Découvrez notre calculateur de prêt immobilier, un outil simple et efficace pour estimer vos mensualités de prêt et votre capacité d'emprunt.

En quelques secondes, découvrez combien vous pouvez emprunter en fonction de vos paramètres.

Utilisez notre calculateur pour planifier votre projet immobilier avec précision et simplicité.

Pour toute question ou conseil, contactez-nous !

Maison à construire 71000 Sennecé-lès-Mâcon

Agence de Varennes-lès-Mâcon

03 85 59 15 46 746 Champ de la Lié, D906 - 71000 Varennes-lès-Mâcon
Agence de Varennes-lès-Mâcon

Vous aimerez aussi