Magnifique petite maison de plain pied en plein centre de PLAUZAT
En exclusivité petit terrain hors lotissement plein centre du bourg de Plauzat joli village de caractère à proximite des commodités. Possibilé de réaliser une maison a etage de 110 m² ou plain pied
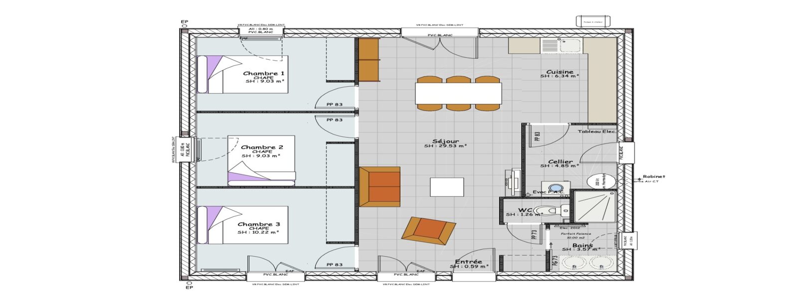
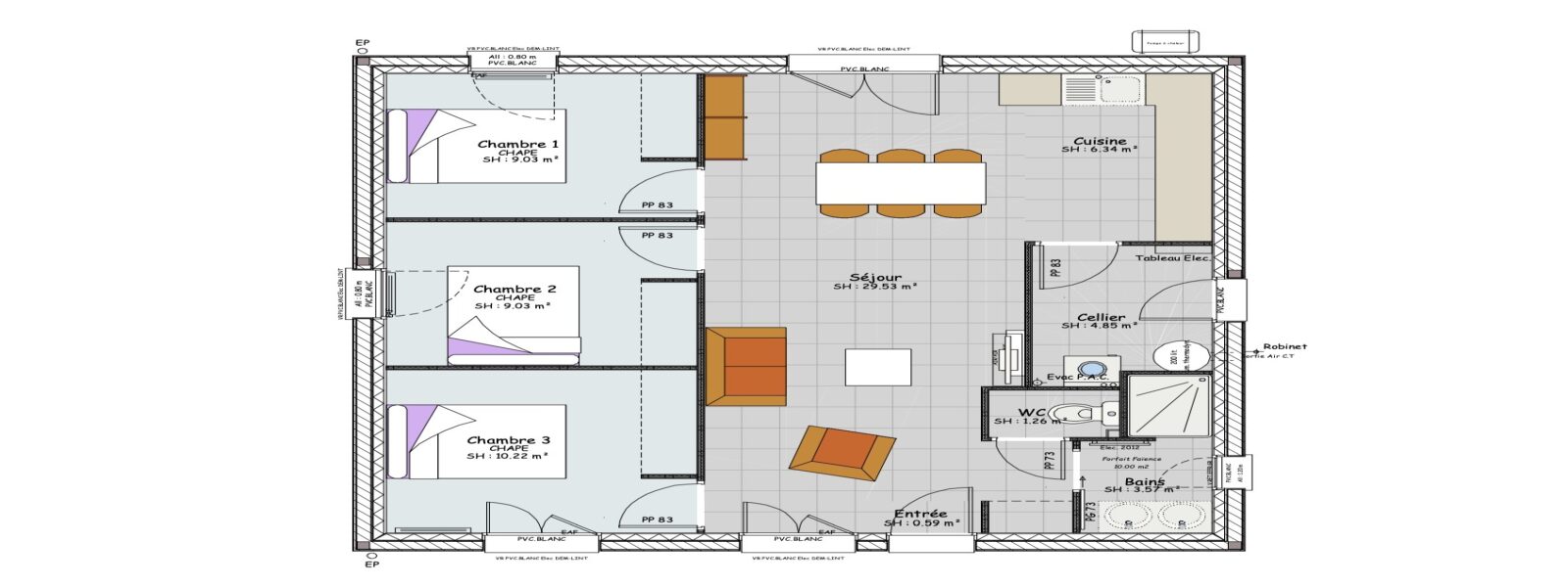
Découvrez notre nouvelle maison de plain-pied adaptée aux normes handicapées avec 3 chambres, une pièce à vivre lumineuse comprenant une cuisine ouverte et un cellier pratique qui peut donner sur un carport grâce à une porte de service. Cette maison est idéale pour une petite famille ou pour ceux qui cherchent une maison facile à entretenir.
Elle est équipée de volets roulants électriques intégrés, d'un chauffage avec PAC air/air et d'une domotique SOMFY pour votre confort. Nous vous offrons également la possibilité de personnaliser l'ensemble des prestations et finitions selon vos goûts et besoins. Notez que ce modèle existe également dans une version avec garage.
Le prix est non contractuel et donné à titre indicatif. Il ne comprend pas les frais de raccordement, l'adaptation spéciale au sol et à l’urbanisme en fonction du lieu de construction déclaré et de ses contraintes techniques. Le prix inclut un chauffage RE2020 PAC air/air. Les revêtements de murs, sols des chambres et plafonds sont optionnels. L'assurance Dommage Ouvrage est comprise dans le prix.
Contactez-nous pour plus d'informations sur cette maison et sur nos autres modèles personnalisables. Nous sommes à votre disposition pour vous accompagner dans votre projet de construction.
Garanties et assurances obligatoires incluses (voir détails en agence). Hors raccordements, hors branchements. Hors frais de notaire. Terrain sélectionné et vu pour vous sous réserve de disponibilité et au prix indiqué par notre partenaire foncier.
Simulation gratuite
Découvrez notre calculateur de prêt immobilier, un outil simple et efficace pour estimer vos mensualités de prêt et votre capacité d'emprunt.
En quelques secondes, découvrez combien vous pouvez emprunter en fonction de vos paramètres.
Utilisez notre calculateur pour planifier votre projet immobilier avec précision et simplicité.
Pour toute question ou conseil, contactez-nous !
Agence de Cournon-d’Auvergne
Vous aimerez aussi
BELLE MAISON SUR TERRAIN EN LOTISSEMENT PERIGNAT SUR ALLIER
MAISON DE PLAIN PIED SUR TERRAIN EN LOTISSEMENT PERIGNAT SUR ALLIER