• imageHD2024-07-10_123023.jpg
  • imageHD2024-07-10_020131.jpg
  • Terrain Paray le Monial.jpg
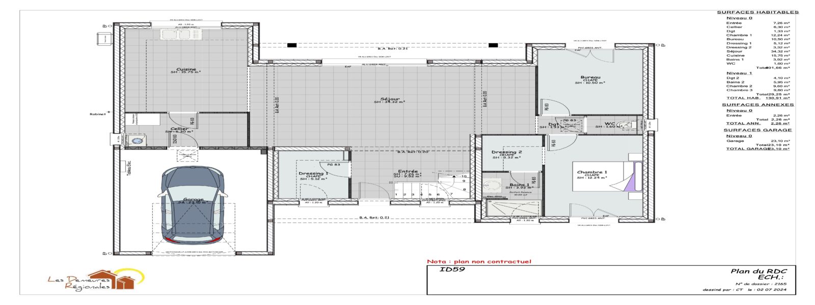
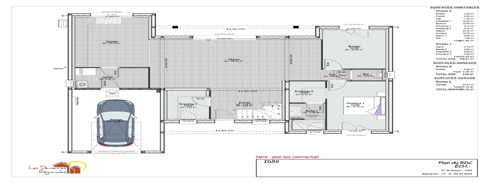
  • Santa Rosa - RDC.jpg
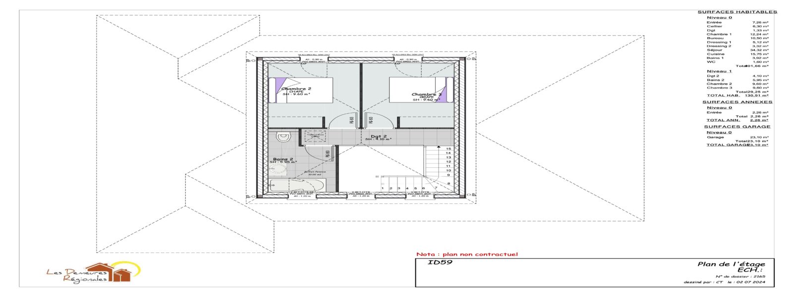
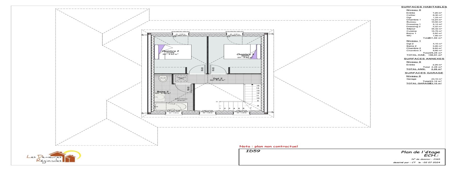
  • Santa Rosa - R+1.jpg
5
131 m² Terrain de 951 m² 5 pièces 4 chambres 2 sdb / sde

Projet de construction de standing – Belle opportunité à Paray-le-Monial

316 950 €
Référence : 3979193

Dans un environnement résidentiel recherché de Paray-le-Monial, découvrez un projet de construction alliant standing, espace et qualité de vie.

Implanté au cœur d’un lotissement soigné et harmonieux, ce projet vous offre un cadre idéal pour donner vie à une maison élégante, confortable et parfaitement intégrée à son environnement, avec une belle surface de terrain permettant de profiter pleinement des extérieurs.

Ce projet s’adresse à celles et ceux qui recherchent :
- Un cadre de vie calme et qualitatif
- De beaux volumes intérieurs
- Une conception soignée et personnalisable
- Un terrain offrant de réelles possibilités d’aménagement extérieur

Un accompagnement sur-mesure vous est proposé à chaque étape : étude personnalisée, conception de votre maison, démarches administratives et suivi complet de votre construction.

Contactez-nous pour découvrir cette opportunité et étudier ensemble votre projet dans les meilleures conditions.

Offrez-vous la chance de faire construire cette magnifique maison contemporaine, conçue pour offrir un cadre de vie moderne et confortable. Idéale pour les familles à la recherche d’un projet immobilier alliant élégance et fonctionnalité, cette maison répond aux normes RE 2020 pour un confort optimal et des économies d'énergie.

Caractéristiques Principales:
Surface Habitable : 130,91 m²
Surface Garage : 23,10 m²

Points Forts

Projet Personnalisable : Choisissez vos finitions et matériaux pour une maison qui vous ressemble

Conformité RE 2020 : Normes les plus récentes pour un confort optimal et des économies d'énergie

Espace et Lumière : Pièces spacieuses et lumineuses grâce à de grandes ouvertures

Chauffage et Eau Chaude Sanitaire : Pompe à chaleur Extensa Duo, connectée de dernière génération

Aménagement Extérieur : Possibilité de jardin paysagé idéal pour les moments de détente

Grand Garage : 23,10 m² pour abriter vos véhicules et plus encore

Suite Parentale : Située au rez-de-chaussée et séparée du coin des enfants pour plus

Simulation gratuite

Découvrez notre calculateur de prêt immobilier, un outil simple et efficace pour estimer vos mensualités de prêt et votre capacité d'emprunt.

En quelques secondes, découvrez combien vous pouvez emprunter en fonction de vos paramètres.

Utilisez notre calculateur pour planifier votre projet immobilier avec précision et simplicité.

Pour toute question ou conseil, contactez-nous !

Maison à construire 71600 Paray-le-Monial

Agence de Paray-le-Monial

03 58 42 09 56 2 bis boulevard du Collège - 71600 Paray-le-Monial
Agence de Paray-le-Monial

Vous aimerez aussi