• imageHD2023-06-08_031859.jpg
  • terrain.jpg
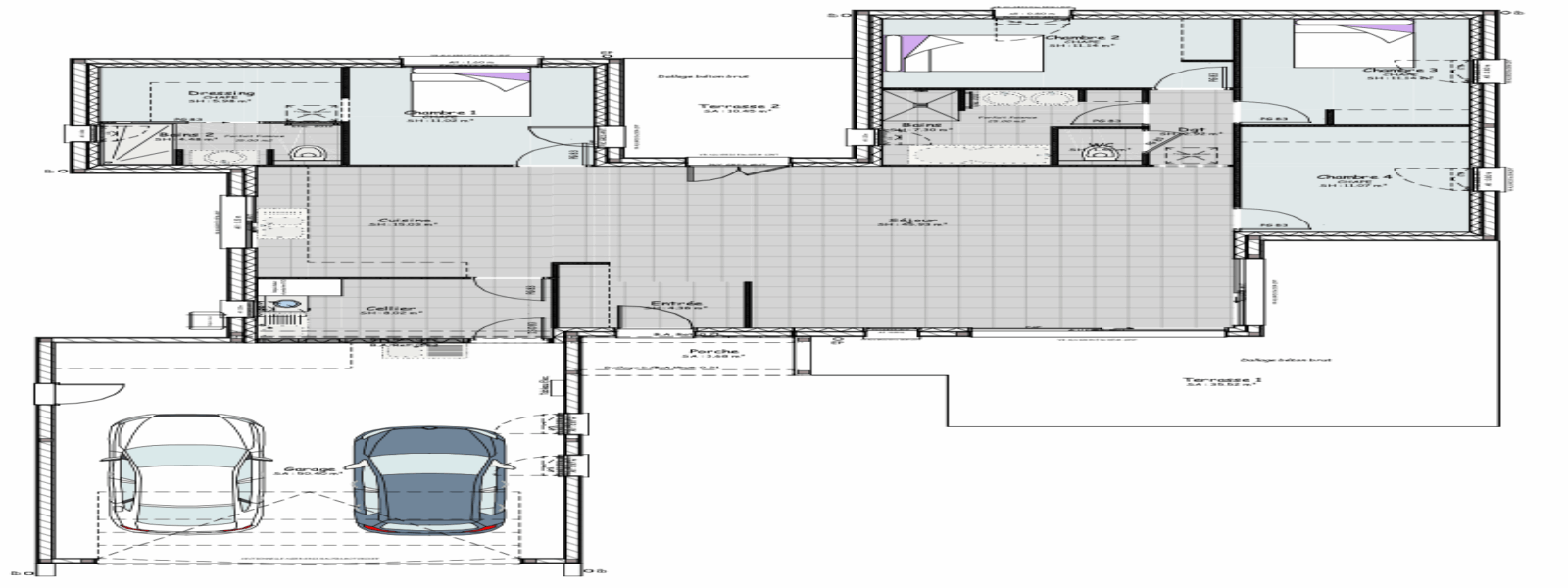
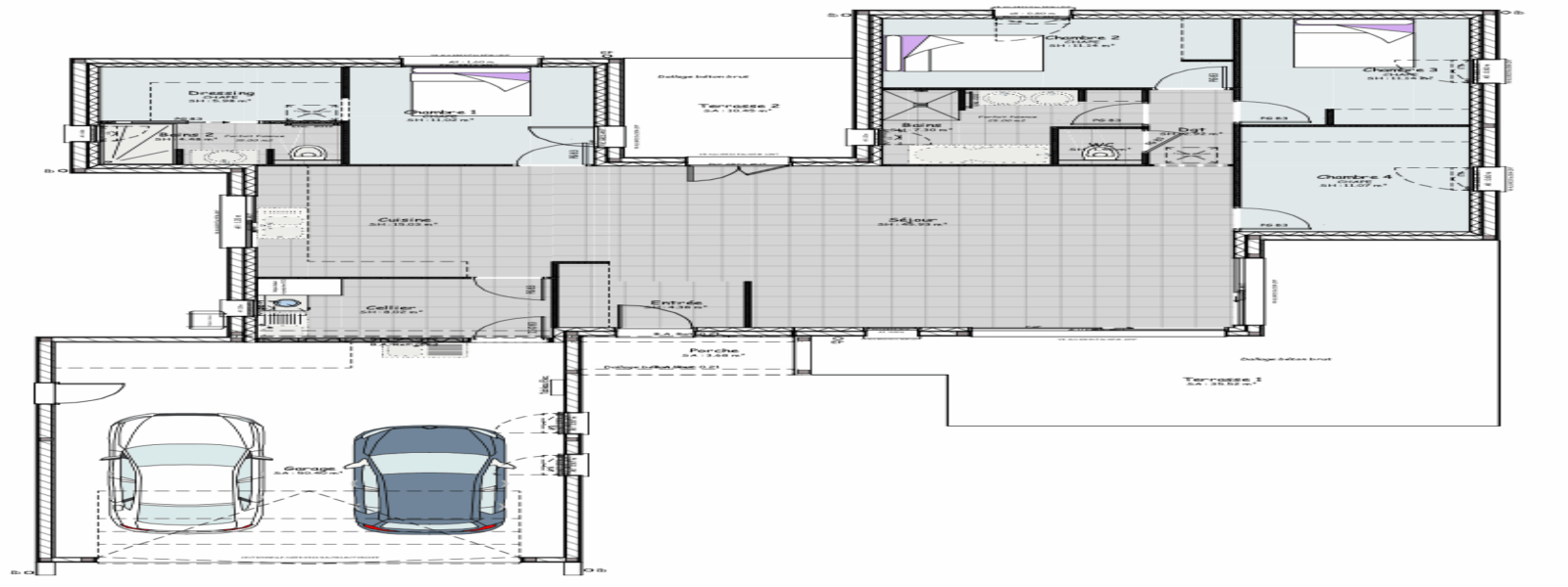
  • RDC.png
3
218 m² Terrain de 820 m² 6 pièces 4 chambres 2 sdb / sde

Projet d’exception sur Digoin

362 000 €
Référence : 3838358

Belle parcelle de terrain à 5 mn de centre de Digoin au calme, plat, bref idéal pour votre projet de construction

Demeure d'Exception, à Construire avec 4 Chambres, Suite Parentale et plus encore !

Vous recherchez la maison parfaite pour votre famille. Ne cherchez plus ! Cette maison à construire offre tout ce que vous désirez, avec des caractéristiques exceptionnelles.

Caractéristiques clés :

4 chambres, dont une luxueuse suite parentale avec salle d'eau privative et dressing.
Un comble aménageable au-dessus du garage, créant un grenier de 28m2 supplémentaires pour répondre à vos besoins de stockage ou de loisirs.
Un double garage spacieux de 50m2 pour abriter vos véhicules et plus encore.
Belles prestations, y compris une pompe à chaleur avec plafond rayonnant et kit rafraîchissant pour un confort thermique optimal.
Deux magnifiques terrasses, l'une de 11m2 et l'autre de 35m2, pour profiter des extérieurs à tout moment.
Un espace parental séparé du coin des enfants, offrant intimité et tranquillité à tous.
Cette maison à construire est la toile vierge parfaite pour créer votre havre de paix personnalisé. Imaginez-vous ici, créez des souvenirs inoubliables et faites de cette maison le foyer de vos rêves !

Simulation gratuite

Découvrez notre calculateur de prêt immobilier, un outil simple et efficace pour estimer vos mensualités de prêt et votre capacité d'emprunt.

En quelques secondes, découvrez combien vous pouvez emprunter en fonction de vos paramètres.

Utilisez notre calculateur pour planifier votre projet immobilier avec précision et simplicité.

Pour toute question ou conseil, contactez-nous !

Maison à construire 71160 Digoin

Agence de Paray-le-Monial

03 58 42 09 56 2 bis boulevard du Collège - 71600 Paray-le-Monial
Agence de Paray-le-Monial

Vous aimerez aussi