• imageHD2023-06-09_045723.jpg
  • imageHD2023-06-09_112402.jpg
  • imageHD2023-06-09_111501.jpg
  • terrain.jpg
  • rdc.png
  • Etage.jpg
6
172 m² Terrain de 680 m² 6 pièces 4 chambres 2 sdb / sde

Projet d’exception sur Manziat

397 000 €
Référence : 3865043

Dans secteur recherché, belle parcelle de terrain pour un beau projet de construction

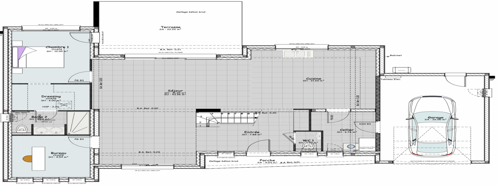
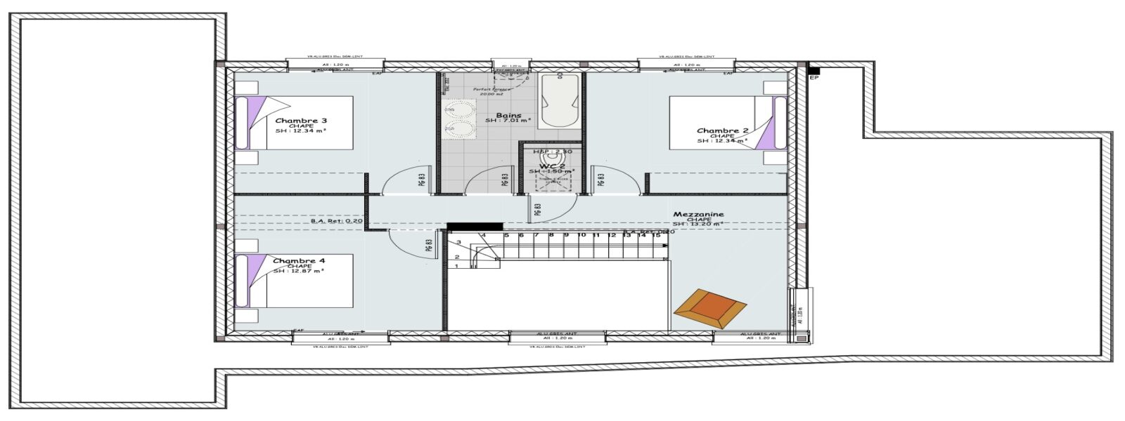
Superbe Maison à Construire avec 4 Chambres, Bureau et Mezzanine

Vous rêvez de votre maison idéale? Voici une opportunité unique de construire la maison de vos rêves! Cette maison contemporaine allie espace, confort et élégance pour répondre à tous vos besoins.

Caractéristiques principales:
4 chambres spacieuses pour toute la famille.
Un bureau pour travailler confortablement depuis chez vous.
Une mezzanine pour un espace polyvalent.
Un vide sur entrée qui ajoute une touche d'originalité.
Un grand garage communicant avec un cellier pratique.
Une cuisine ouverte, idéale pour les amateurs de cuisine et de convivialité.

Construction:
Cette maison est construite en brique, garantissant solidité et durabilité. Le toit plat ajoute une touche moderne et élégante à l'ensemble.

Prestations haut de gamme:
Pompe à chaleur avec plafond rayonnant pour un confort thermique optimal toute l'année.
Kit rafraîchissant pour les journées chaudes d'été.

Simulation gratuite

Découvrez notre calculateur de prêt immobilier, un outil simple et efficace pour estimer vos mensualités de prêt et votre capacité d'emprunt.

En quelques secondes, découvrez combien vous pouvez emprunter en fonction de vos paramètres.

Utilisez notre calculateur pour planifier votre projet immobilier avec précision et simplicité.

Pour toute question ou conseil, contactez-nous !

Maison à construire 01570 Manziat

Agence de Varennes-lès-Mâcon

03 85 59 15 46 746 Champ de la Lié, D906 - 71000 Varennes-lès-Mâcon
Agence de Varennes-lès-Mâcon

Vous aimerez aussi