Rare! Opportunité construction villa 143m3 – 4 CH- St Rémy en Rollat
Une opportunité à saisir.
Sur la commune de Rémy-en-Rollat, magnifique parcelle de 1107m2 en partie viabilisée en eau et tout à l'égout.
Totalement plat et cloturé sur 3 côtés, ce terrain saura accueillir facilement votre projet de construction. Proche à pied de toutes commodités, sa proximité immédiate du bourg est un autre atout majeur.
N'hésitez pas! Contactez nous! Nous serons ravis de bâtir avec vous votre projet idéal. A très bientôt!
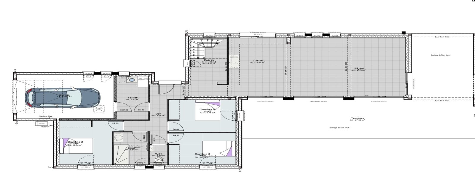
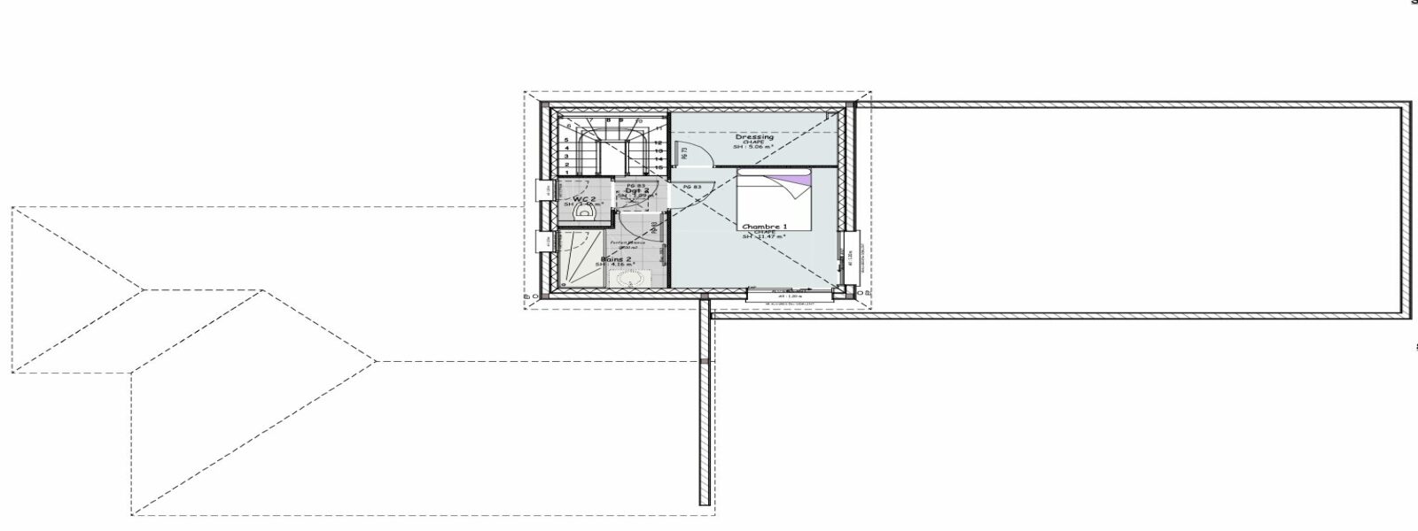
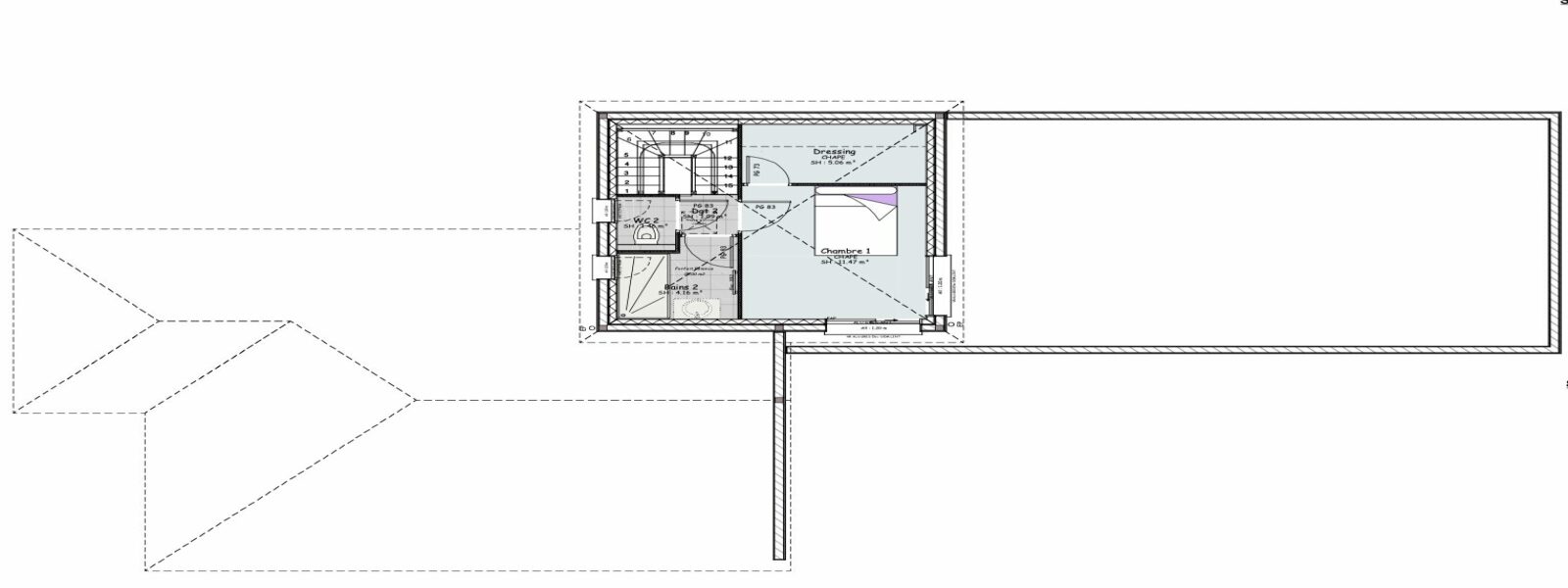
Belle villa d'Architecte, avec des prestations haut de gamme pour cette demeure de 143 m² habitables et son garage de 22 m².
Les 4 grandes baies vitrées donne sur une très grande terrasse de 67 m² dont une partie est couverte.
4 chambres dont une qui est une suite parentale de 22 m² situé à l'écart dans la tour composé d'un dressing et d'une salle d'eau privative avec un toilette séparé.
Menuiseries design en RAL7016 (coloris ardoise), porte d'entrée tierce.
Toutes les baies
Garanties et assurances obligatoires incluses (voir détails en agence). Hors raccordements, hors branchements. Hors frais de notaire. Terrain sélectionné et vu pour vous sous réserve de disponibilité et au prix indiqué par notre partenaire foncier.
Simulation gratuite
Découvrez notre calculateur de prêt immobilier, un outil simple et efficace pour estimer vos mensualités de prêt et votre capacité d'emprunt.
En quelques secondes, découvrez combien vous pouvez emprunter en fonction de vos paramètres.
Utilisez notre calculateur pour planifier votre projet immobilier avec précision et simplicité.
Pour toute question ou conseil, contactez-nous !
Agence de Bellerive-sur-Allier
Vous aimerez aussi
Projet de construction 93m2- 3CH- Terrain viabilisé 842 m2 - St Germain des Fossés
Maison contemporaine 4 CH - Garage et Terrasse - CREUZIER-LE-NEUF