Terrain en lotissement – PERRECY-LES-FORGES (71) – Spécial premier achat
Saisissez l’occasion de devenir propriétaire grâce à ce terrain à bâtir situé dans un lotissement calme et agréable à Perrecy-les-Forges.
Un emplacement idéal pour un premier projet, avec toutes les commodités à proximité.
Terrain viabilisé : réseaux complets (eau, électricité, télécom, tout-à-l’égout)
Environnement : cadre résidentiel, parfait pour une première installation
Atouts : terrain relativement plat, facile à aménager, bonne orientation
Une opportunité abordable et sécurisante pour se lancer dans son premier achat immobilier.
Pour toute information :
Les Demeures Régionales – Paray-le-Monial
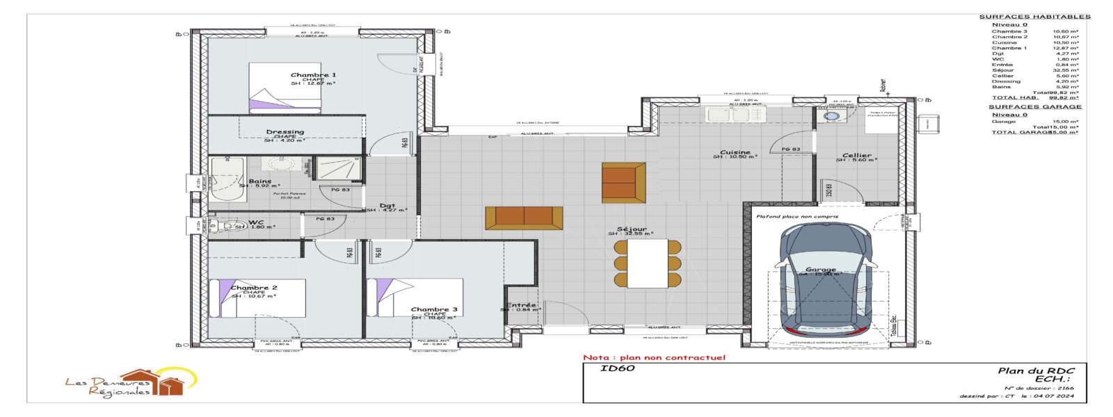
Maison moderne aux dernières normes RE2020
Découvrez cette magnifique maison de plain-pied de 100 m² habitables + 15 m² de garage, offrant des espaces lumineux et fonctionnels. Elle comprend :
Un séjour spacieux de 32,55 m²
Trois chambres (10,60 m², 10,67 m² et 12,87 m²)
Une cuisine de 10,50 m²
Une salle de bains de 5,92 m²
Un cellier, un dressing et des toilettes indépendantes
Un garage de 15,00 m²
Profitez du confort d'une maison aux dernières normes énergétiques RE2020, avec pompe à chaleur et isolation ultra-performante.
Garanties et assurances obligatoires incluses (voir détails en agence). Hors raccordements, hors branchements. Hors frais de notaire. Terrain sélectionné et vu pour vous sous réserve de disponibilité et au prix indiqué par notre partenaire foncier.
Simulation gratuite
Découvrez notre calculateur de prêt immobilier, un outil simple et efficace pour estimer vos mensualités de prêt et votre capacité d'emprunt.
En quelques secondes, découvrez combien vous pouvez emprunter en fonction de vos paramètres.
Utilisez notre calculateur pour planifier votre projet immobilier avec précision et simplicité.
Pour toute question ou conseil, contactez-nous !
Agence de Paray-le-Monial
Vous aimerez aussi
Terrain à bâtir à Paray-le-Monial – Cadre champêtre et calme
Terrain à bâtir à Digoin – Parcelle plate