A bâtir ! Charmante maison 75m2 – 3CH – Broût-Vernet
Venez profiter du cadre champêtre de Brout-Vernet, à seulement 20 minutes de Vichy, 15 minutes de Saint-Pourçain sur Sioule et Gannat.
Un terrain viabilisé s’offre à vous, une belle orientation sur le terrain pour
permettre un projet de construction idéal.
Nous nous tenons à votre écoute pour élaborer avec vous votre pavillon et vous accompagnerons dans l’ensemble de vos démarches.
N’hésitez plus ce terrain est fait pour vous!
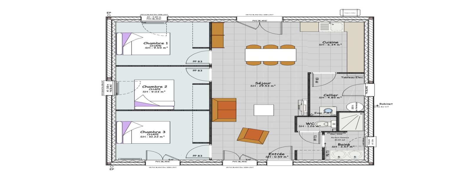
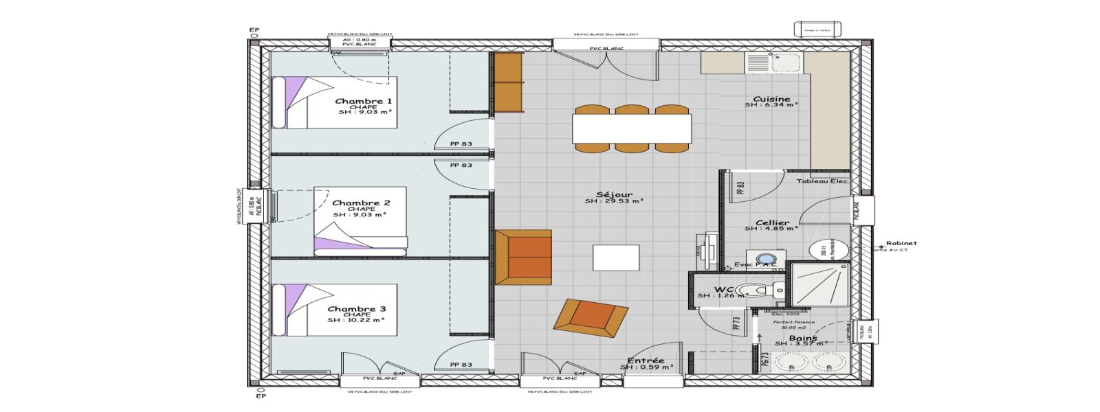
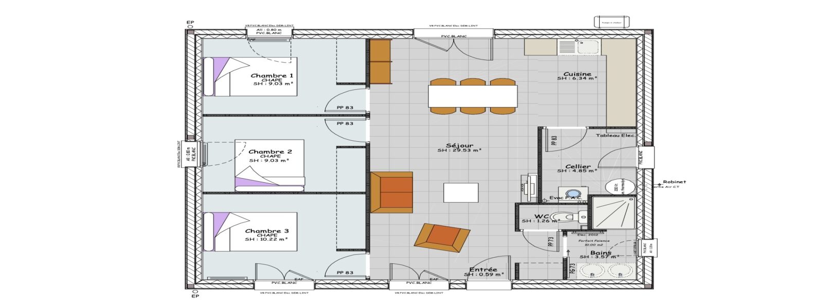
Découvrez notre nouvelle maison de plain-pied adaptée aux normes handicapées avec 3 chambres, une pièce à vivre lumineuse comprenant une cuisine ouverte et un cellier pratique qui peut donner sur un carport grâce à une porte de service. Cette maison est idéale pour une petite famille ou pour ceux qui cherchent une maison facile à entretenir.
Elle est équipée de volets roulants électriques intégrés, d’un chauffage avec PAC air/air et d’une domotique SOMFY pour votre confort. Nous vous offrons également la possibilité de personnaliser l’ensemble des prestations et finitions selon vos goûts et besoins. Notez que ce modèle existe également dans une version avec garage.
Le prix est non contractuel et donné à titre indicatif. Il ne comprend pas les frais de raccordement, l’adaptation spéciale au sol et à l’urbanisme en fonction du lieu de construction déclaré et de ses contraintes techniques. Le prix inclut un chauffage RE2020 PAC air/air. Les revêtements de murs, sols des chambres et plafonds sont optionnels. L’assurance Dommage Ouvrage est comprise dans le prix.
Contactez-nous pour plus d’informations sur cette maison et sur nos autres modèles personnalisables. Nous sommes à votre disposition pour vous accompagner dans votre projet de construction.
Garanties et assurances obligatoires incluses (voir détails en agence). Hors raccordements, hors branchements. Hors frais de notaire. Terrain sélectionné et vu pour vous sous réserve de disponibilité et au prix indiqué par notre partenaire foncier.
Simulation gratuite
Découvrez notre calculateur de prêt immobilier, un outil simple et efficace pour estimer vos mensualités de prêt et votre capacité d'emprunt.
En quelques secondes, découvrez combien vous pouvez emprunter en fonction de vos paramètres.
Utilisez notre calculateur pour planifier votre projet immobilier avec précision et simplicité.
Pour toute question ou conseil, contactez-nous !