Belle parcelle à construire viabilisée 15 min Thiers
A saisir sur la commune de Sauviat, petit village du Puy de Dôme, ce très beau terrain à bâtir.
Proche de Courpière ,15 minutes de Thiers, ces atouts sont nombreux :
terrain plat ,clôturé, avec l’ensemble des viabilisations en bordure de terrain dont le tout à l’égoût.
N’hésitez plus, contactez nous pour élaborer avec vous le projet de vos rêves.
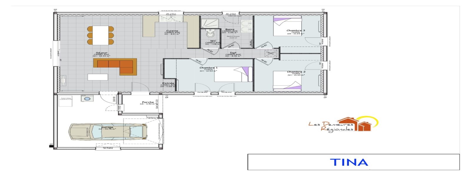
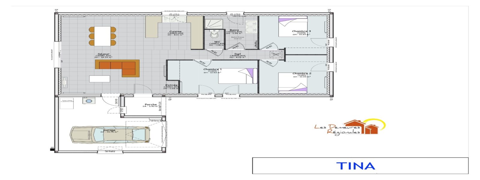
Le modèle TINA a une superficie habitable de 90 m² composé d’un vaste séjour avec cuisine ouverte, d’un garage de 20 m², d’un wc, de trois belles chambres avec placards muraux et d’une salle de bain équipée d’une douche et d’une vasque.
Volets roulants électriques, chauffage PAC air/eau et radiateurs hydrauliques, domotique SOMFY … Tout est pensé pour votre confort.
À noter que ce modèle existe également dans une version sans garage et que vous pouvez personnaliser l’ensemble des prestations et finitions.
Prix non contractuel et donné à titre indicatif. Il s’entend hors raccordement, adaptation spéciale au sol et à l’urbanisme en fonction du lieu de construction déclaré et de ses contraintes techniques. Ce prix inclus un chauffage RE2020 PAC air/eau. Les revêtements de murs, sols des chambres et plafonds sont optionnels. L’assurance Dommage Ouvrage est comprise dans le prix.
Garanties et assurances obligatoires incluses (voir détails en agence). Hors raccordements, hors branchements. Hors frais de notaire. Terrain sélectionné et vu pour vous sous réserve de disponibilité et au prix indiqué par notre partenaire foncier.
Simulation gratuite
Découvrez notre calculateur de prêt immobilier, un outil simple et efficace pour estimer vos mensualités de prêt et votre capacité d'emprunt.
En quelques secondes, découvrez combien vous pouvez emprunter en fonction de vos paramètres.
Utilisez notre calculateur pour planifier votre projet immobilier avec précision et simplicité.
Pour toute question ou conseil, contactez-nous !