Belle villa 4 chambres sur terrain de 651 m² au lotissement à Vallon-en-Sully
Vous rêvez de faire construire votre maison dans un environnement paisible, tout en restant proche des commodités et des grands axes ? Ce terrain est fait pour vous !
– Localisation privilégiée –
Situé à Vallon-en-Sully, commune dynamique de l’Allier, ce terrain viabilisé de 651 m² se trouve dans un lotissement calme, verdoyant et parfaitement entretenu.
Distances :
25 km de Montluçon
27 km de Saint-Amand-Montrond
63 km de Moulins
117 km de Clermont-Ferrand
– Accès et mobilité –
Accès rapide à l’A71, directement depuis la commune
Gare SNCF à proximité
Transport à la demande mise en place par le Conseil Départemental
Voie verte en direction de Montluçon, idéale pour les promenades et les activités de plein air
– Commodités à proximité –
Commerces : supérette, boulangerie, chocolatier, fleuriste, tabac, bars, restaurants
Services : auto-école, notaire, coiffeur, opticien, banque, hôtel, taxi
Santé : médecins, dentiste, pharmacie, infirmières, vétérinaire
Enfance : garderie
Loisirs : terrain de golf à proximité
Artisans et services auto : électricien, plombier, chauffagiste, garage, station-service, station de lavage
Opportunité à saisir !
Ce terrain à prix attractif (16 926 €) est parfait pour accueillir votre futur projet de construction dans un cadre de vie agréable, à la fois serein et bien desservi.
Intéressé ?
Contactez-nous dès maintenant pour plus d’informations ou pour programmer une visite.
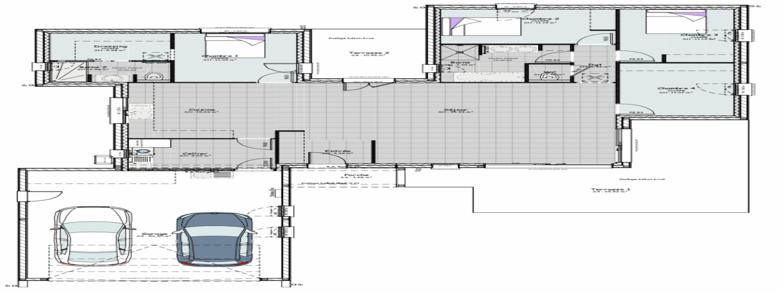
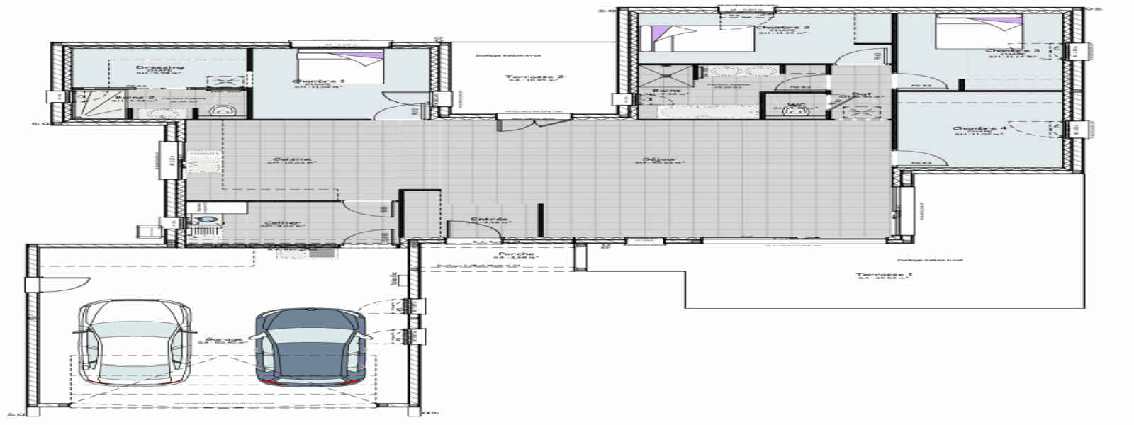
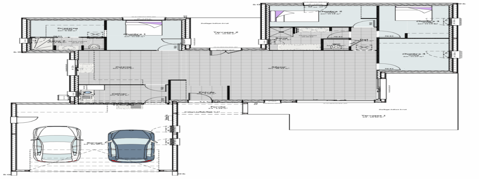
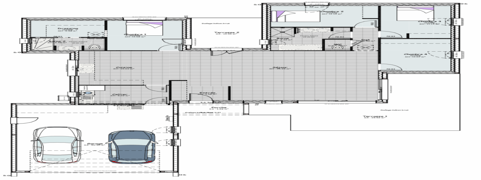
Demeure d’Exception, à Construire avec 4 Chambres, Suite Parentale et plus encore !
Vous recherchez la maison parfaite pour votre famille. Ne cherchez plus ! Cette maison à construire offre tout ce que vous désirez, avec des caractéristiques exceptionnelles.
Caractéristiques clés :
4 chambres, dont une luxueuse suite parentale avec salle d’eau privative et dressing.
Un comble aménageable au-dessus du garage, créant un grenier de 28m2 supplémentaires pour répondre à vos besoins de stockage ou de loisirs.
Un double garage spacieux de 50m2 pour abrit
Garanties et assurances obligatoires incluses (voir détails en agence). Hors raccordements, hors branchements. Hors frais de notaire. Terrain sélectionné et vu pour vous sous réserve de disponibilité et au prix indiqué par notre partenaire foncier.
Simulation gratuite
Découvrez notre calculateur de prêt immobilier, un outil simple et efficace pour estimer vos mensualités de prêt et votre capacité d'emprunt.
En quelques secondes, découvrez combien vous pouvez emprunter en fonction de vos paramètres.
Utilisez notre calculateur pour planifier votre projet immobilier avec précision et simplicité.
Pour toute question ou conseil, contactez-nous !