• clea-vue-arriere-piscine-les-demeures-regionales.jpg
  • clea-vue-avant-les-demeures-regionales.jpg
  • CLEA axo rdc.jpg
  • CLEA intérieur 1.jpg
  • CLEA axo étage.jpg
  • 20240314_091541.jpg
  • CLEA plan de cellule RDC.jpg
  • CLEA plan de cellule étage.jpg
8
124 m² Terrain de 808 m² 6 pièces 4 chambres 2 sdb / sde

Creuzier-le-Neuf – Belle opportunité de construction – Terrain 808 m2 – Maison 4 Chambres

255 700 €
Référence : 3320676

Très beau terrain légèrement en pente et facile d'accès.
Raccordement tout à l'égout- eau - électricité - téléphone à prévoir. L'ensemble des réseaux passant en bordure de route.
Le terrain possède une belle façade, l'environnement et la vue sont dégagés et verdoyants.
Le quartier est calme et proche de toutes commodités.

Voici l'emplacement idéal pour voir s'accomplir son projet familial ou locatif. Contactez nous sans plus attendre afin de d'établir avec vous votre projet rêvé !

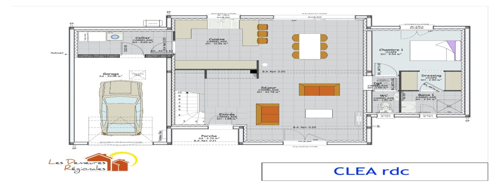
CLEA est un modèle contemporain conçut par Les Demeures Régionales à étage avec garage composé de trois chambres : une grande suite parentale au rez-de-chaussée avec salle de bain privée et trois belles chambres à l’étage, où se trouvent également une grande salle de bains et des toilettes séparées.
Au rez-de-chaussée, la cuisine qui communique dans le cellier s’ouvre sur un séjour aux larges ouvertures, qui permettent de profiter au maximum de la lumière naturelle.
Porte de garage sectionnelle motorisée, volets roulants électriques, chauffage PAC air/eau, domotique SOMFY, ... Tout est pensé pour votre confort.
À noter que ce modèle existe sans garage et que vous pouvez personnaliser l'ensemble des prestations et finitions.

Prix non contractuel et donné à titre indicatif. Il s’entend hors raccordement, adaptation spéciale au sol et à l’urbanisme en fonction du lieu de construction déclaré et de ses contraintes techniques. Ce prix inclus un chauffage RE2020 PAC air/eau. Les revêtements de murs, sols des chambres et plafonds sont optionnels. L'assurance Dommage Ouvrage est comprise dans le prix.

Simulation gratuite

Découvrez notre calculateur de prêt immobilier, un outil simple et efficace pour estimer vos mensualités de prêt et votre capacité d'emprunt.

En quelques secondes, découvrez combien vous pouvez emprunter en fonction de vos paramètres.

Utilisez notre calculateur pour planifier votre projet immobilier avec précision et simplicité.

Pour toute question ou conseil, contactez-nous !

Maison à construire 03300 Creuzier-le-Neuf

Agence de Bellerive-sur-Allier

04 70 97 66 02 93 avenue de Vichy - 03700 Bellerive-sur-Allier
Agence de Bellerive-sur-Allier

Vous aimerez aussi