Maison 3 chambres – Charmeil – tout à l’égout
Excellente opportunité de construction dans le secteur de Charmeil. Très prisé !
Cette belle parcelle viabilisée permet d’envisager un projet de construction familial, ou locatif.
Proche de toutes commodités, il bénéficie cependant d’un environnement calme et résidentiel.
A visiter sans plus attendre!
Offrez-vous la chance de faire construire cette magnifique maison contemporaine, conçue pour offrir un cadre de vie moderne et confortable. Idéale pour les familles à la recherche d’un projet immobilier alliant élégance et fonctionnalité, cette maison répond aux normes RE 2020 pour un confort optimal et des économies d’énergie.
Caractéristiques Principales:
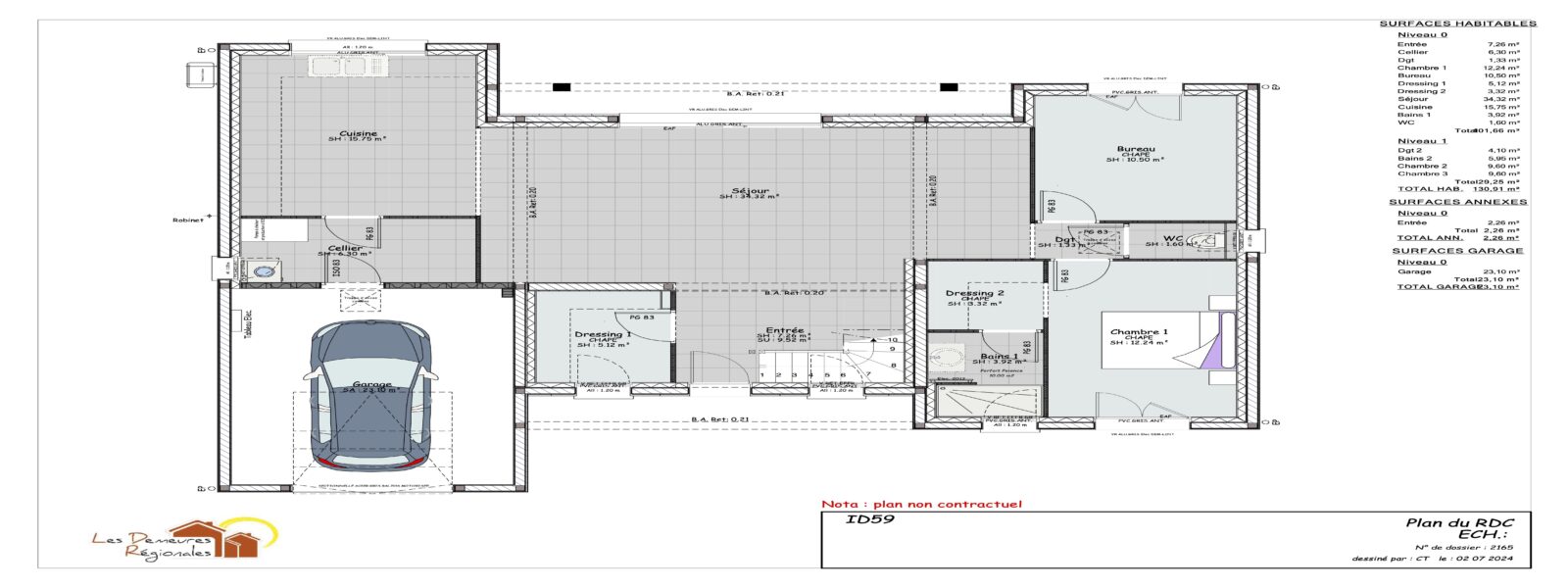
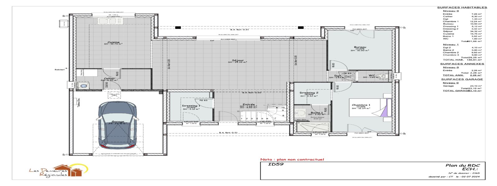
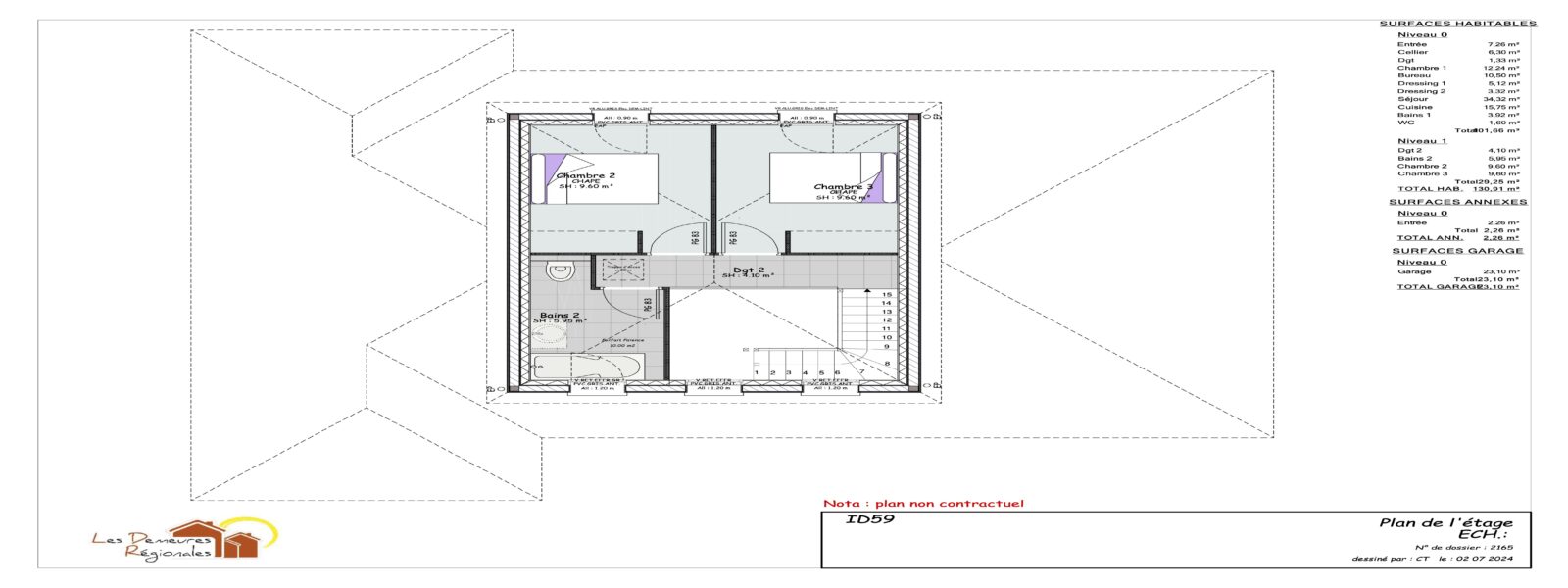
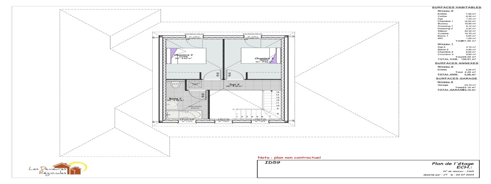
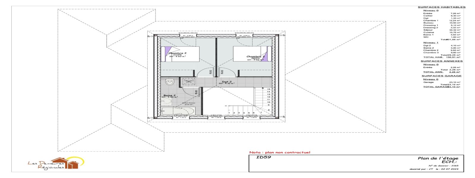
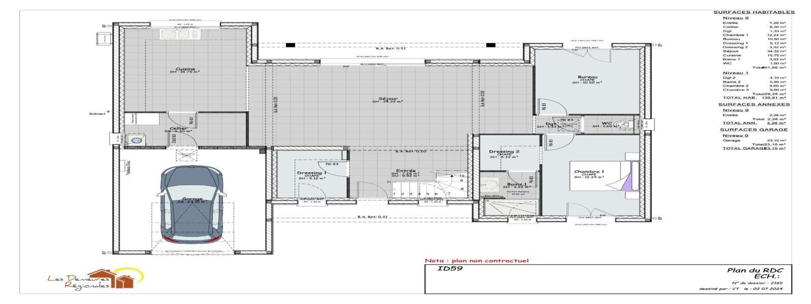
Surface Habitable : 130,91 m²
Surface Garage : 23,10 m²
Points Forts
Projet Personnalisable : Choisissez vos finitions et matériaux pour une maison qui vous ressemble
Conformité RE 2020 : Normes les plus récentes pour un confort optimal et des économies d’énergie
Espace et Lumière : Pièces spacieuses et lumineuses grâce à de grandes ouvertures
Chauffage et Eau Chaude Sanitaire : Pompe à chaleur Extensa Duo, connectée de dernière génération
Aménagement Extérieur : Possibilité de jardin paysagé idéal pour les moments de détente
Grand Garage : 23,10 m² pour abriter vos véhicules et plus encore
Suite Parentale : Située au rez-de-chaussée et séparée du coin des enfants pour plus de tranquillité
Volumes Superbes : Vide sur entrée via la mezzanine offrant des volumes impressionnants
Domotique : Volets roulants et motorisation de la porte de garage connectés pour un contrôle à distance (Somfy).
Avantages de la Construction
Garantie Décennale, Assurance Dommage à l’Ouvrage, Garantie de Livraison à Prix et Délais Convenus : Prix ferme et définitif (non révisable)
Personnalisation : Adaptation du plan selon vos besoins et envies
Contact
Pour plus d’informations ou pour organiser un rendez-vous, n’hésitez pas à nous contacter.
Ne manquez pas cette opportunité unique de faire construire la maison de vos rêves
Garanties et assurances obligatoires incluses (voir détails en agence). Hors raccordements, hors branchements. Hors frais de notaire. Terrain sélectionné et vu pour vous sous réserve de disponibilité et au prix indiqué par notre partenaire foncier.
Simulation gratuite
Découvrez notre calculateur de prêt immobilier, un outil simple et efficace pour estimer vos mensualités de prêt et votre capacité d'emprunt.
En quelques secondes, découvrez combien vous pouvez emprunter en fonction de vos paramètres.
Utilisez notre calculateur pour planifier votre projet immobilier avec précision et simplicité.
Pour toute question ou conseil, contactez-nous !