• CARLA axo.jpg
  • carla-vue-arriere-piscine-les-demeures-regionales.jpg
  • carla-vue-avant-2-les-demeures-regionales.jpg
  • carla-vue-avant-1-les-demeures-regionales (1).jpg
  • carla-vue-interieure-les-demeures-regionales (1).jpg
  • rue de l'hermitage st germain.png
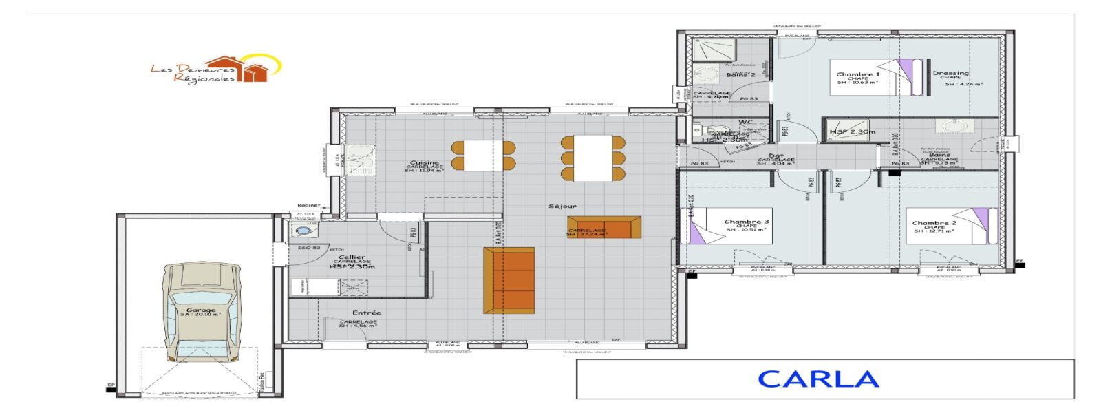
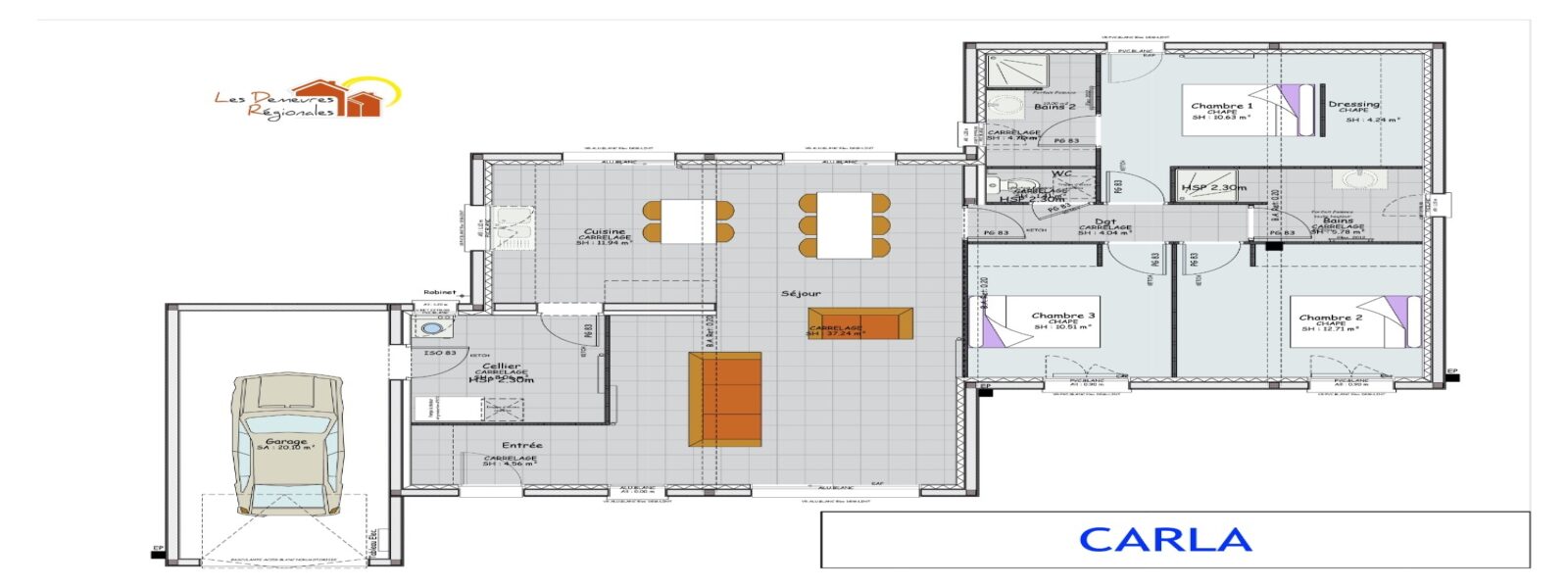
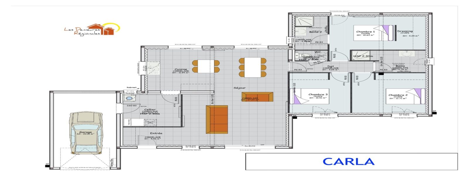
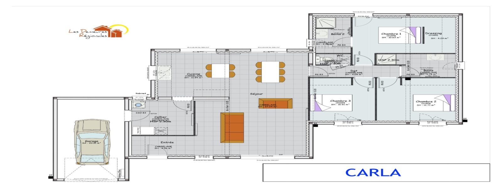
  • CARLA plan de cellule.jpg
7
116 m² Terrain de 918 m² 5 pièces 3 chambres 2 sdb / sde

Maison contemporaine – 3 CH avec garage – Terrain viabilisé 918 m2 – St Germain des Fossés

275 000 €
Référence : 3308565

Joli terrain plat dans un secteur résidentiel à l'entrée de la commune. Voie express facile d'accès, la parcelle est viabilisée et desservie en eau, électricité et tout à l'égout.

Le terrain est borné, CU positif, étude de sol G1 réalisée.

L'environnement calme et paisible tout en étant proche des commodités sera un atout pour y envisager votre projet de vie familiale, ou projeter un investissement locatif.

Le modèle CARLA dessiné par Les Demeures Régionales a une superficie habitable de 116 m² composé d'un vaste séjour avec cuisine ouverte, d'un cellier communiquant dans le garage de 20 m², d'un wc, de trois belles chambres avec placards muraux dont une suite parentale avec dressing et de deux salles de bains.
Volets roulants électriques, chauffage PAC air/eau, domotique SOMFY, ... Tout est pensé pour votre confort.
À noter que ce modèle existe également dans une version sans garage et que vous pouvez personnaliser l'ensemble des prestations et finitions.
Tout est possible !

Prix non contractuel et donné à titre indicatif. Il s’entend hors raccordement, adaptation spéciale au sol et à l’urbanisme en fonction du lieu de construction déclaré et de ses contraintes techniques. Ce prix inclus un chauffage RE2020 PAC air/eau. Les revêtements de murs, sols des chambres et plafonds sont optionnels. L'assurance Dommage Ouvrage est comprise dans le prix.

Simulation gratuite

Découvrez notre calculateur de prêt immobilier, un outil simple et efficace pour estimer vos mensualités de prêt et votre capacité d'emprunt.

En quelques secondes, découvrez combien vous pouvez emprunter en fonction de vos paramètres.

Utilisez notre calculateur pour planifier votre projet immobilier avec précision et simplicité.

Pour toute question ou conseil, contactez-nous !

Maison à construire 03260 Saint-Germain-des-Fossés

Agence de Bellerive-sur-Allier

04 70 97 66 02 93 avenue de Vichy - 03700 Bellerive-sur-Allier
Agence de Bellerive-sur-Allier

Vous aimerez aussi