• imageHD2023-06-09_045723.jpg
  • imageHD2023-06-09_112402.jpg
  • imageHD2023-06-09_111501.jpg
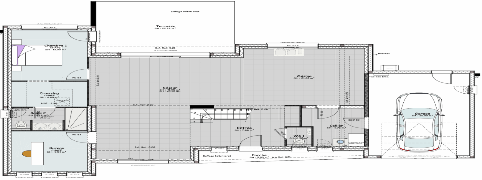
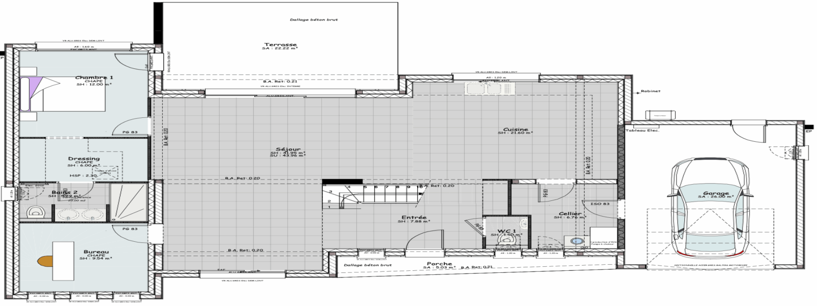
  • rdc.png
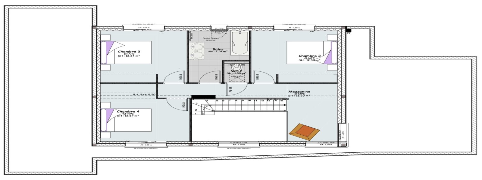
  • Etage.jpg
5
172 m² Terrain de 695 m² 6 pièces 4 chambres 2 sdb / sde

MAISON DE CARACTERE TERRAIN LOTISSEMENT VEYRE MONTON

412 000 €
Référence : 3919242

A découvrir belle parcelle avec vue sur la chaine des puys. Située dans un quartier residentiel au calme laissez vous seduire par ce paysage magnifique proche du centre de VEYRE MONTON

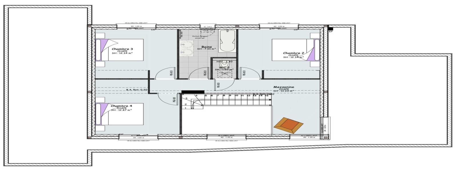
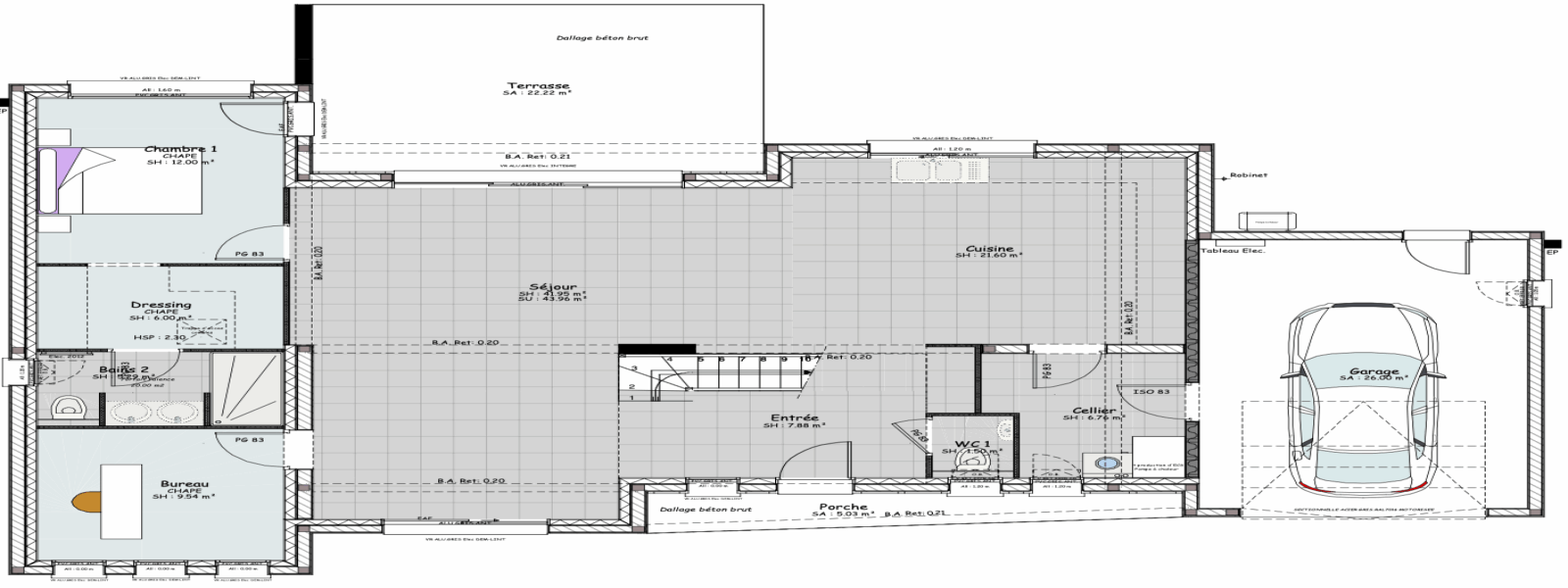
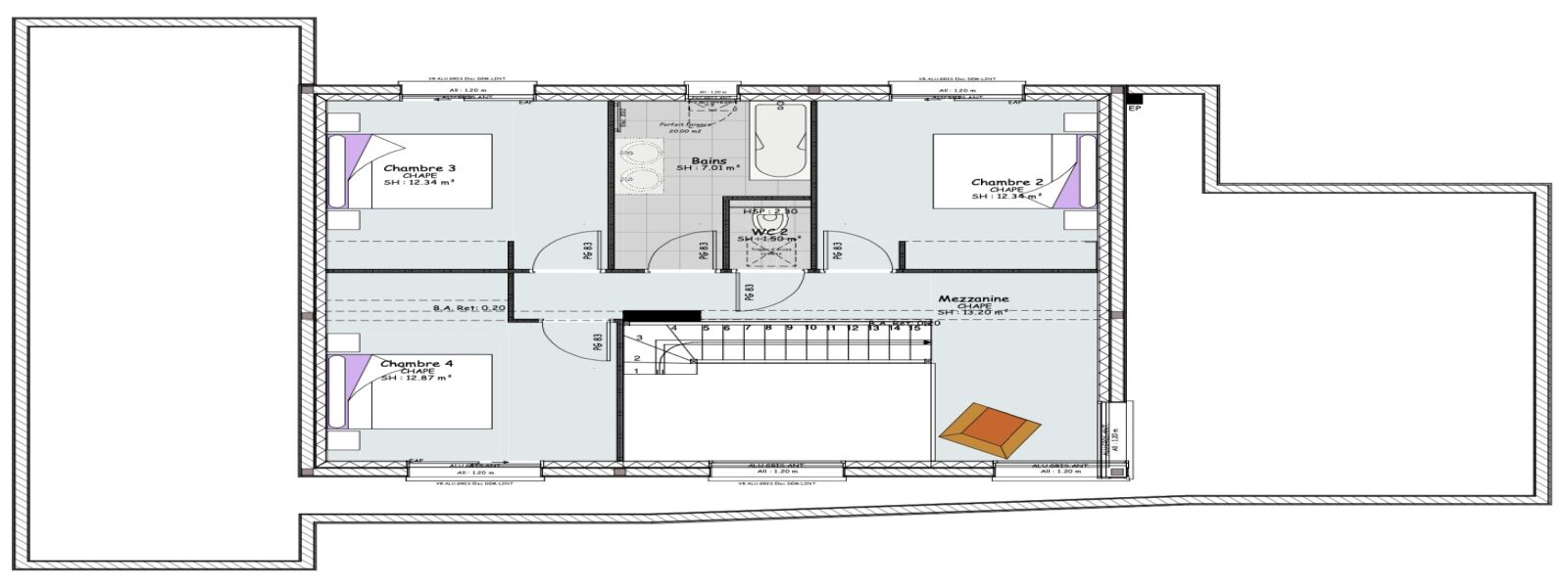
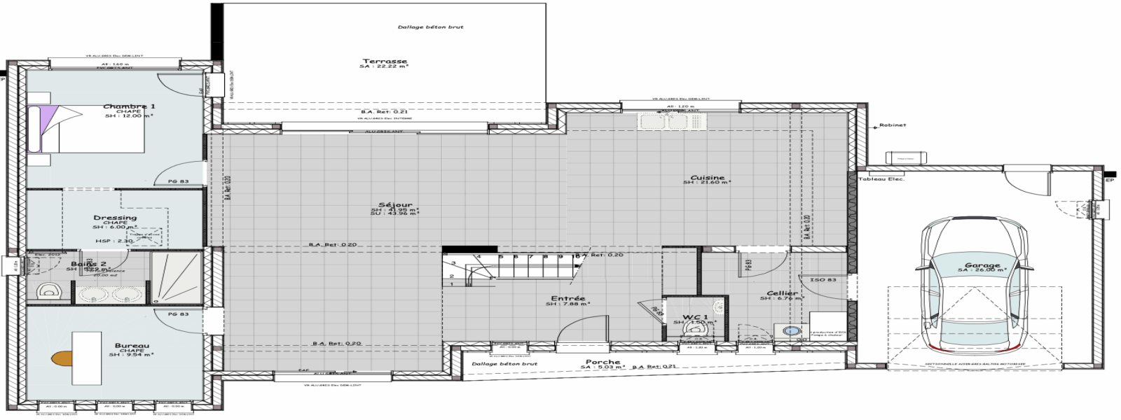
Superbe Maison à Construire avec 4 Chambres, Bureau et Mezzanine

Vous rêvez de votre maison idéale? Voici une opportunité unique de construire la maison de vos rêves! Cette maison contemporaine allie espace, confort et élégance pour répondre à tous vos besoins.

Caractéristiques principales:
4 chambres spacieuses pour toute la famille.
Un bureau pour travailler confortablement depuis chez vous.
Une mezzanine pour un espace polyvalent.
Un vide sur entrée qui ajoute une touche d'originalité.
Un grand garage communicant avec un cellier pratique.
Une cuisine ouverte, idéale pour les amateurs de cuisine et de convivialité.

Construction:
Cette maison est construite en brique, garantissant solidité et durabilité. Le toit plat ajoute une touche moderne et élégante à l'ensemble.

Prestations haut de gamme:
Pompe à chaleur avec plafond rayonnant pour un confort thermique optimal toute l'année.
Kit rafraîchissant pour les journées chaudes d'été.

Simulation gratuite

Découvrez notre calculateur de prêt immobilier, un outil simple et efficace pour estimer vos mensualités de prêt et votre capacité d'emprunt.

En quelques secondes, découvrez combien vous pouvez emprunter en fonction de vos paramètres.

Utilisez notre calculateur pour planifier votre projet immobilier avec précision et simplicité.

Pour toute question ou conseil, contactez-nous !

Maison à construire 63960 Veyre-Monton

Agence de Cournon-d’Auvergne

04 73 25 30 32 36 rue de Sarliève - 63800 Cournon-d'Auvergne
Agence de Cournon-d’Auvergne

Vous aimerez aussi