Projet de construction 115m2 – 3CH – Creuzier-le-Vieux
Belle opportunité de construction sur un terrain plat et viabilisé.
Au sein d'un ensemble à construire, ce quartier d'éco-habitats saura charmé par son environnement calme et résidentiel, très recherché pour sa proximité immédiate de Vichy.
Proche de toutes commodités, il bénéficie d'une situation idéale.
A visiter sans plus attendre !
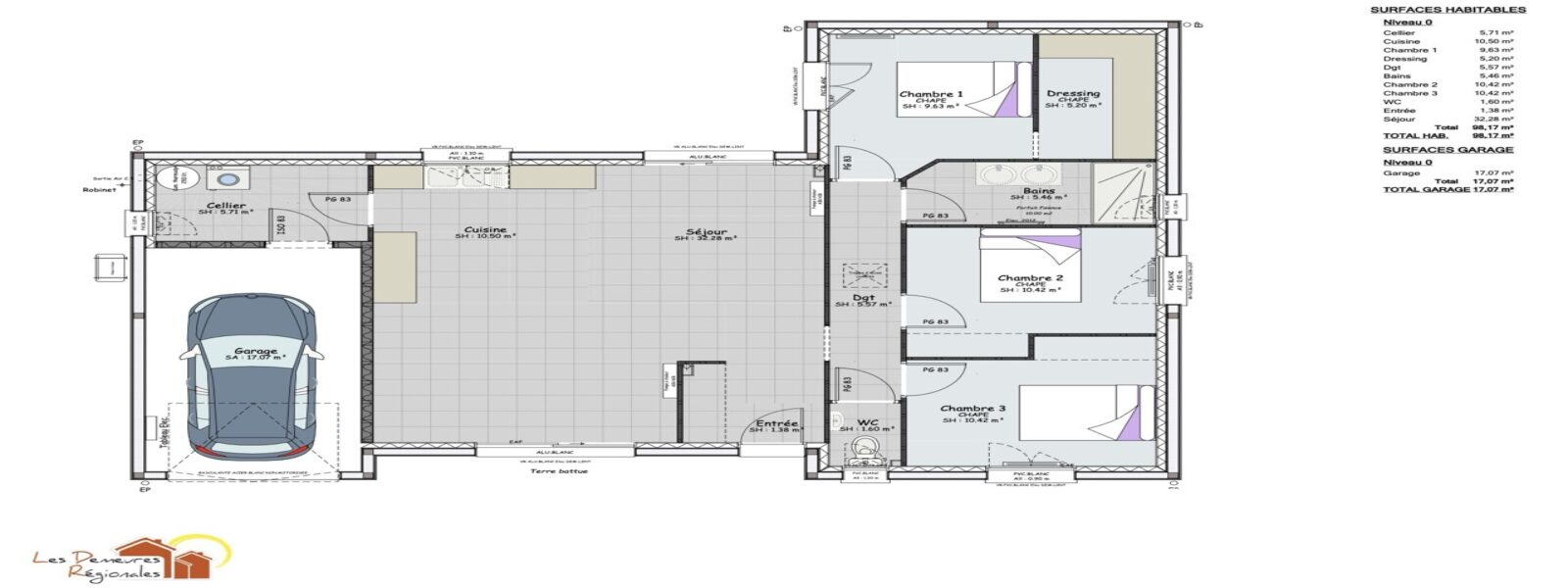
Yellowstone : L’espace de vie moderne, performant et lumineux
Le modèle Yellowstone vous propose une grande pièce à vivre de plus de 42 m², réunissant séjour et cuisine ouverte pour une ambiance conviviale et baignée de lumière naturelle.
**Caractéristiques principales : **
- Espace séjour/cuisine de 42,78 m²
- 3 chambres dont une suite parentale avec dressing
- Cellier attenant à la cuisine
- Garage intégré de 17 m²
** Confort et performance : **
- Chauffage par pompe à chaleur Air/Air, économique et écologique.
- Menuiseries PVC et aluminium blanc avec volets roulants électriques pour une isolation optimale et un confort d’utilisation.
- Isolation performante pour garantir des économies d’énergie et un bien-être toute l’année.
Yellowstone, c’est le choix d’une maison moderne, confortable et économe, pensée pour la vie de famille.
Garanties et assurances obligatoires incluses (voir détails en agence). Hors raccordements, hors branchements. Hors frais de notaire. Terrain sélectionné et vu pour vous sous réserve de disponibilité et au prix indiqué par notre partenaire foncier.
Simulation gratuite
Découvrez notre calculateur de prêt immobilier, un outil simple et efficace pour estimer vos mensualités de prêt et votre capacité d'emprunt.
En quelques secondes, découvrez combien vous pouvez emprunter en fonction de vos paramètres.
Utilisez notre calculateur pour planifier votre projet immobilier avec précision et simplicité.
Pour toute question ou conseil, contactez-nous !
Agence de Bellerive-sur-Allier
Vous aimerez aussi
Projet de construction 93m2- 3CH- Terrain viabilisé 842 m2 - St Germain des Fossés
Maison contemporaine 4 CH - Garage et Terrasse - CREUZIER-LE-NEUF