• Rendu 3D - KRAY 75 Evo (face avant).jpg
  • imageHD2023-10-06_045722.jpg
  • saint germain des fosses les moulieres.png
  • KRAY75EVO.jpeg
4
75 m² Terrain de 842 m² 4 pièces 3 chambres 1 sdb / sde

Projet de construction 93m2- 3CH- Terrain viabilisé 842 m2 – St Germain des Fossés

135 212 €
Référence : 3782051

Situé dans un secteur résidentiel dans la commune de Saint-Germain-des-Fossés, venez découvrir ce joli terrain plat, viabilisé, et proche de toutes commodités.

Que ce soit pour un projet de construction familial ou locatif, cet emplacement est à coup sûr un bel investissement.

Nous nous tenons à votre disposition pour étudier votre demande et concrétiser vos envies. Contactez-nous sans plus attendre !

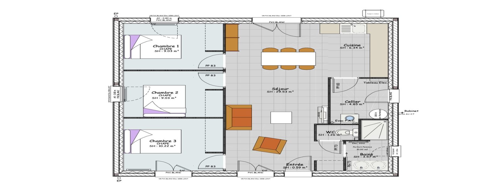
Découvrez notre nouvelle maison de plain-pied adaptée aux normes handicapées avec 3 chambres, une pièce à vivre lumineuse comprenant une cuisine ouverte et un cellier pratique qui peut donner sur un carport grâce à une porte de service. Cette maison est idéale pour une petite famille ou pour ceux qui cherchent une maison facile à entretenir.

Elle est équipée de volets roulants électriques intégrés, d'un chauffage avec PAC air/air et d'une domotique SOMFY pour votre confort. Nous vous offrons également la possibilité de personnaliser l'ensemble des prestations et finitions selon vos goûts et besoins. Notez que ce modèle existe également dans une version avec garage.

Le prix est non contractuel et donné à titre indicatif. Il ne comprend pas les frais de raccordement, l'adaptation spéciale au sol et à l’urbanisme en fonction du lieu de construction déclaré et de ses contraintes techniques. Le prix inclut un chauffage RE2020 PAC air/air. Les revêtements de murs, sols des chambres et plafonds sont optionnels. L'assurance Dommage Ouvrage est comprise dans le prix.

Contactez-nous pour plus d'informations sur cette maison et sur nos autres modèles personnalisables. Nous sommes à votre disposition pour vous accompagner dans votre projet de construction.

Simulation gratuite

Découvrez notre calculateur de prêt immobilier, un outil simple et efficace pour estimer vos mensualités de prêt et votre capacité d'emprunt.

En quelques secondes, découvrez combien vous pouvez emprunter en fonction de vos paramètres.

Utilisez notre calculateur pour planifier votre projet immobilier avec précision et simplicité.

Pour toute question ou conseil, contactez-nous !

Maison à construire 03260 Saint-Germain-des-Fossés

Agence de Bellerive-sur-Allier

04 70 97 66 02 93 avenue de Vichy - 03700 Bellerive-sur-Allier
Agence de Bellerive-sur-Allier

Vous aimerez aussi