Projet de construction de standing – Paray-le-Monial
Au cœur d’un environnement privilégié et recherché, découvrez un projet de construction alliant élégance, confort et prestations de qualité, dans le lotissement très apprécié à Paray-le-Monial.
Ce projet vous offre l’opportunité de créer une maison contemporaine sur mesure, pensée pour un art de vivre moderne, dans un quartier calme, résidentiel et parfaitement intégré à son environnement.
- Architecture soignée et personnalisable
- Matériaux et finitions haut de gamme
- Volumes généreux et lumière naturelle
- Jardin privatif dans un cadre serein
Vous bénéficiez d’un accompagnement premium, de la conception architecturale à la remise des clés, avec un suivi personnalisé à chaque étape de votre projet.
Renseignements sur rendez-vous uniquement – Contactez-nous pour découvrir ce projet d’exception.
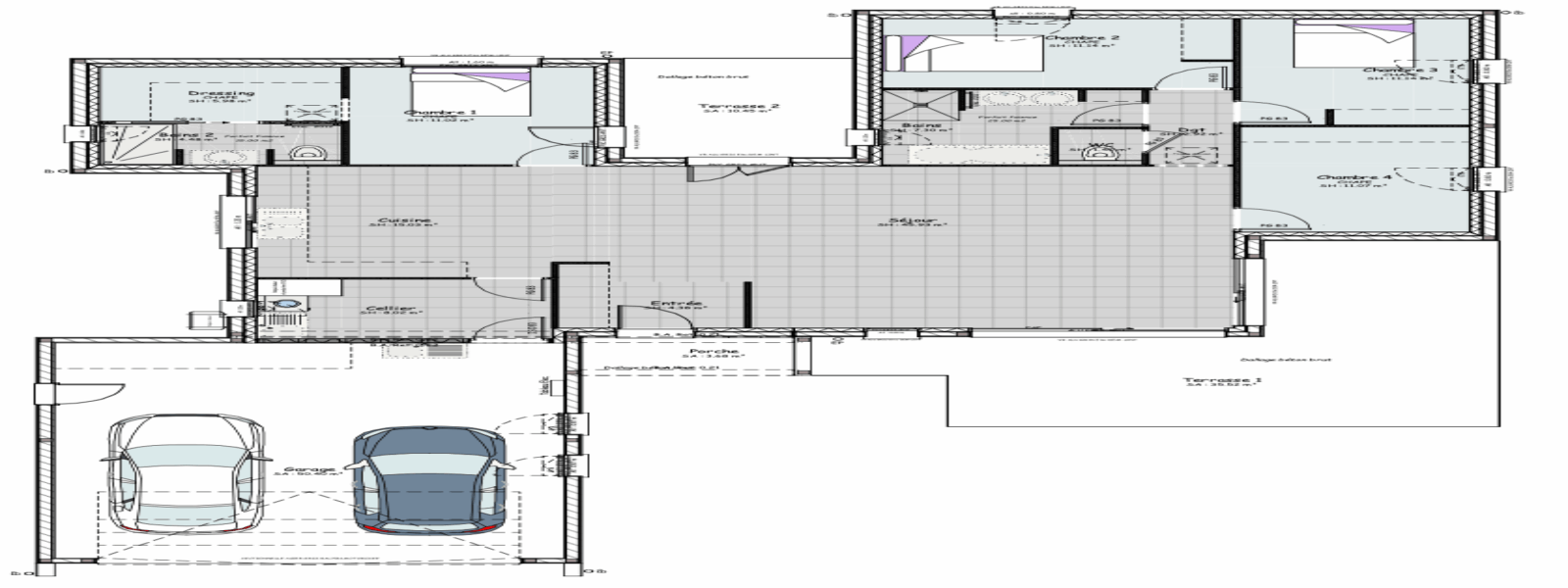
Demeure d'Exception, à Construire avec 4 Chambres, Suite Parentale et plus encore !
Vous recherchez la maison parfaite pour votre famille. Ne cherchez plus ! Cette maison à construire offre tout ce que vous désirez, avec des caractéristiques exceptionnelles.
Caractéristiques clés :
4 chambres, dont une luxueuse suite parentale avec salle d'eau privative et dressing.
Un comble aménageable au-dessus du garage, créant un grenier de 28m2 supplémentaires pour répondre à vos besoins de stockage ou de loisirs.
Un double garage spacieux de 50m2 pour abriter vos véhicules et plus encore.
Belles prestations, y compris une pompe à chaleur avec plafond rayonnant et kit rafraîchissant pour un confort thermique optimal.
Deux magnifiques terrasses, l'une de 11m2 et l'autre de 35m2, pour profiter des extérieurs à tout moment.
Un espace parental séparé du coin des enfants, offrant intimité et tranquillité à tous.
Cette maison à construire est la toile vierge parfaite pour créer votre havre de paix personnalisé. Imaginez-vous ici, créez des souvenirs inoubliables et faites de cette maison le foyer de vos rêves !
Garanties et assurances obligatoires incluses (voir détails en agence). Hors raccordements, hors branchements. Hors frais de notaire. Terrain sélectionné et vu pour vous sous réserve de disponibilité et au prix indiqué par notre partenaire foncier.
Simulation gratuite
Découvrez notre calculateur de prêt immobilier, un outil simple et efficace pour estimer vos mensualités de prêt et votre capacité d'emprunt.
En quelques secondes, découvrez combien vous pouvez emprunter en fonction de vos paramètres.
Utilisez notre calculateur pour planifier votre projet immobilier avec précision et simplicité.
Pour toute question ou conseil, contactez-nous !
Agence de Paray-le-Monial
Vous aimerez aussi
Terrain à bâtir à Paray-le-Monial – Cadre champêtre et calme
Terrain à bâtir à Digoin – Parcelle plate