• katia-vue-arriere-les-demeures-regionales.jpg
  • katia-vue-avant-les-demeures-regionales.jpg
  • katia-vue-interieure-les-demeures-regionales.jpg
  • KATIA axo.jpg
  • st gerand le puy louis demonet.jpg
  • KATIA plan de cellule.jpg
6
99 m² Terrain de 718 m² 7 pièces 4 chambres 1 sdb / sde

ST-GERAND-LE-PUY – Jolie maison – 3CH – Garage – Terrain viabilisé et plat 718 m2

199 700 €
Référence : 3308546

Localisé dans l’Allier à 25 minutes au nord-est de VICHY,

SAINT GERAND LE PUY dispose de commerces et de services de proximité ainsi qu’un pole multiservice en cours de construction.

Les parcelles sont viabilisées et disposent d'un assainissement collectif.

Il ne reste qu'à se rencontrer pour établir ensemble votre projet idéal. Nous le concevrons pour vous!

A très bientôt dans notre Agence!

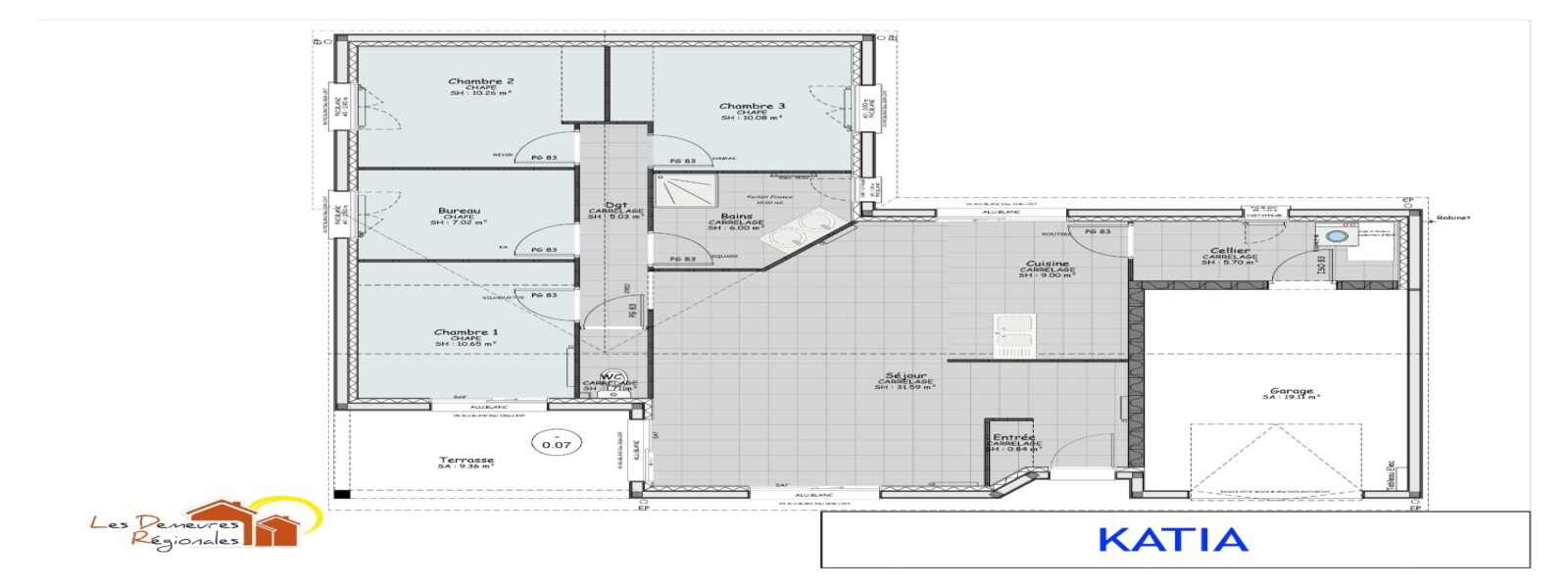
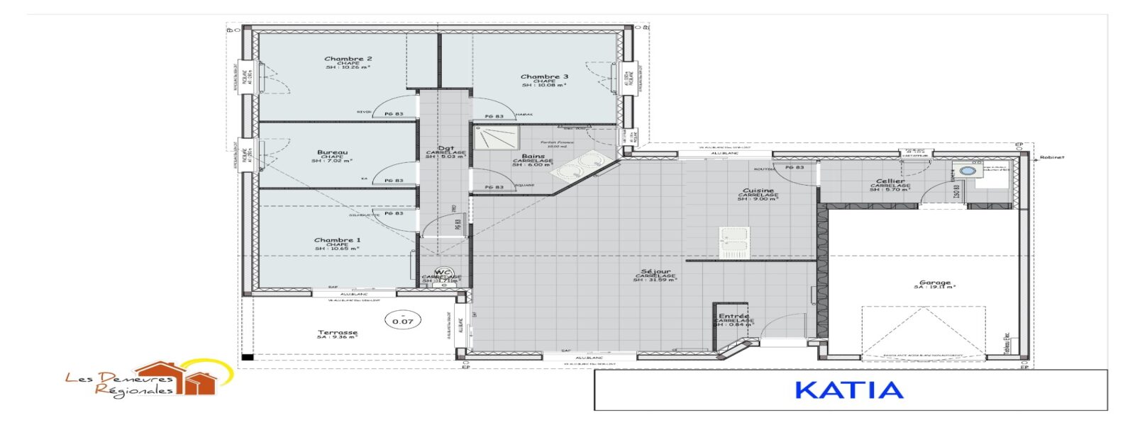
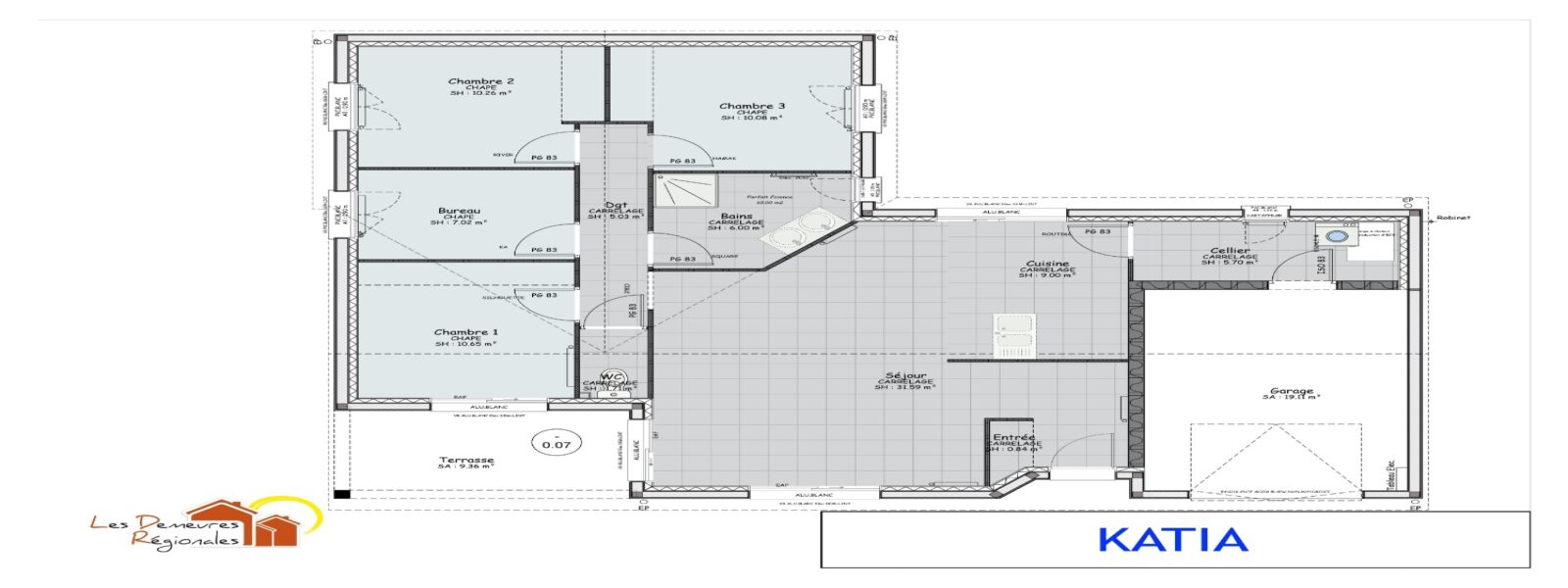
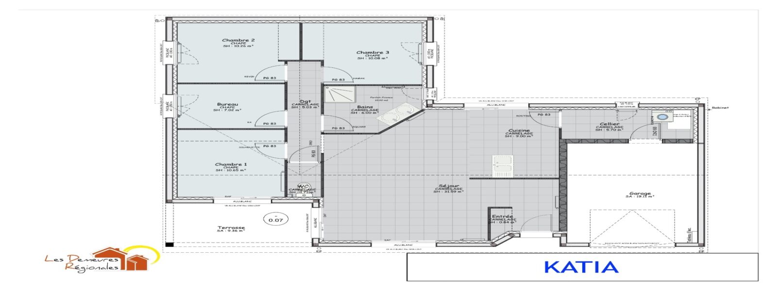
Le modèle KATIA imaginé par Les Demeures Régionales a une superficie habitable de 98 m² composé d'un vaste séjour avec cuisine ouverte, d'un cellier communiquant dans le vaste garage, d'un wc, de trois belles chambres avec placards muraux, d'un bureau et d'une belle salle de bain.
Volets roulants électriques, chauffage PAC air/eau, domotique SOMFY, ... Tout est pensé pour votre confort.
À noter que ce modèle existe également dans une version sans garage et que vous pouvez personnaliser l'ensemble des prestations et finitions.

Prix non contractuel et donné à titre indicatif. Il s’entend hors raccordement, adaptation spéciale au sol et à l’urbanisme en fonction du lieu de construction déclaré et de ses contraintes techniques. Ce prix inclus un chauffage RE2020 PAC air/eau. Les revêtements de murs, sols des chambres et plafonds sont optionnels. L'assurance Dommage Ouvrage est comprise dans le prix.

Simulation gratuite

Découvrez notre calculateur de prêt immobilier, un outil simple et efficace pour estimer vos mensualités de prêt et votre capacité d'emprunt.

En quelques secondes, découvrez combien vous pouvez emprunter en fonction de vos paramètres.

Utilisez notre calculateur pour planifier votre projet immobilier avec précision et simplicité.

Pour toute question ou conseil, contactez-nous !

Maison à construire 03150 Saint-Gérand-le-Puy

Agence de Bellerive-sur-Allier

04 70 97 66 02 93 avenue de Vichy - 03700 Bellerive-sur-Allier
Agence de Bellerive-sur-Allier

Vous aimerez aussi