• facade arriere.jpg
  • facade avant.jpg
  • IMG_1529.jpeg
  • ID60 copie.jpg
4

Superbe demeure en U sur terrain de 700 m² à Avermes.

212 100 €
Référence : 3338871

Situé dans un lotissement privilégié de seulement 12 lots, ce terrain constructible de 700 m² est une opportunité à ne pas manquer. Entièrement viabilisé, il se trouve à seulement deux minutes du centre commercial Leclerc, offrant un accès rapide aux commodités tout en préservant un cadre de vie calme et agréable.

Parfait pour la construction de votre future maison de plain-pied, ce terrain offre de nombreuses possibilités pour réaliser votre projet immobilier dans un environnement serein et bien desservi.

Contactez-nous pour organiser une visite sur rendez-vous et découvrir ce terrain exceptionnel.

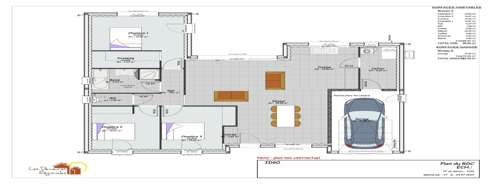
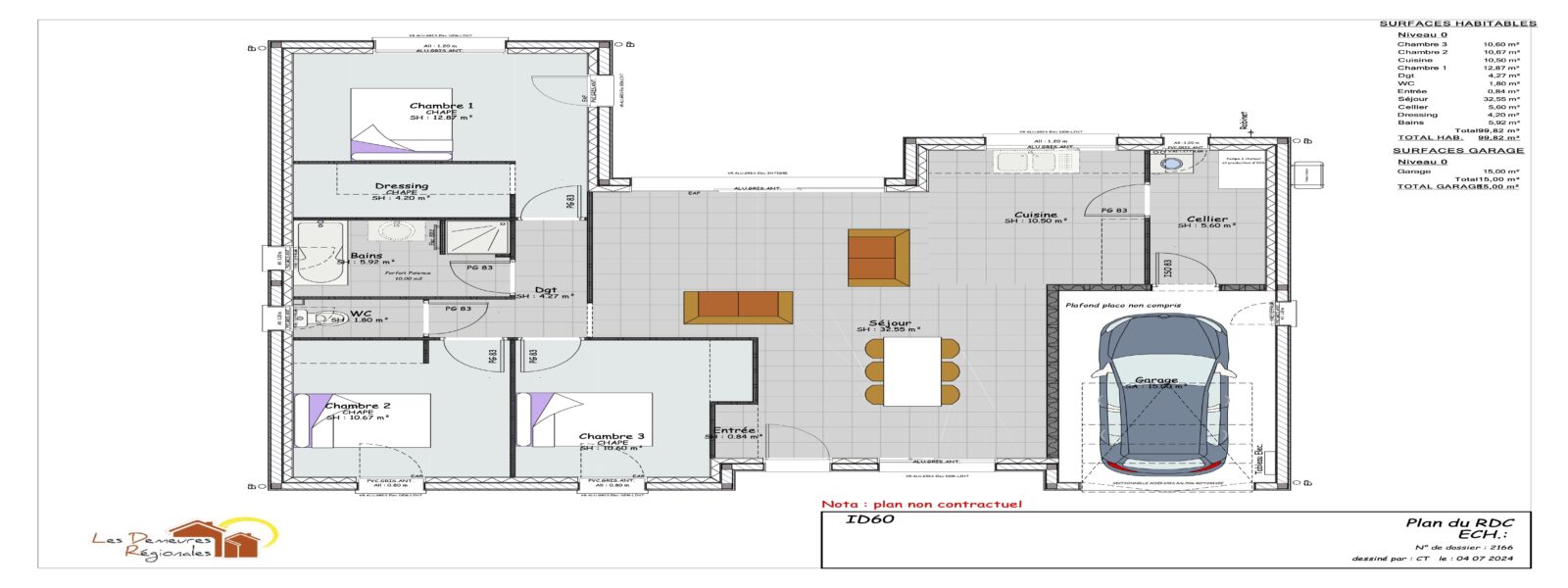
Maison moderne aux dernières normes RE2020

Découvrez cette magnifique maison de plain-pied de 100 m² habitables + 15 m² de garage, offrant des espaces lumineux et fonctionnels. Elle comprend :

Un séjour spacieux de 32,55 m²
Trois chambres (10,60 m², 10,67 m² et 12,87 m²)
Une cuisine de 10,50 m²
Une salle de bains de 5,92 m²
Un cellier, un dressing et des toilettes indépendantes
Un garage de 15,00 m²
Profitez du confort d’une maison aux dernières normes énergétiques RE2020, avec pompe à chaleur et isolation ultra-performante.

Simulation gratuite

Découvrez notre calculateur de prêt immobilier, un outil simple et efficace pour estimer vos mensualités de prêt et votre capacité d'emprunt.

En quelques secondes, découvrez combien vous pouvez emprunter en fonction de vos paramètres.

Utilisez notre calculateur pour planifier votre projet immobilier avec précision et simplicité.

Pour toute question ou conseil, contactez-nous !

Maison à construire 03000 Avermes

Constructeur de maisons dans l’Allier – Agence d’Avermes

04 70 20 08 31 57 route de Paris - 03000 Avermes
Constructeur de maisons dans l’Allier – Agence d’Avermes