• facade arriere.jpg
  • facade avant.jpg
  • terrain.jpg
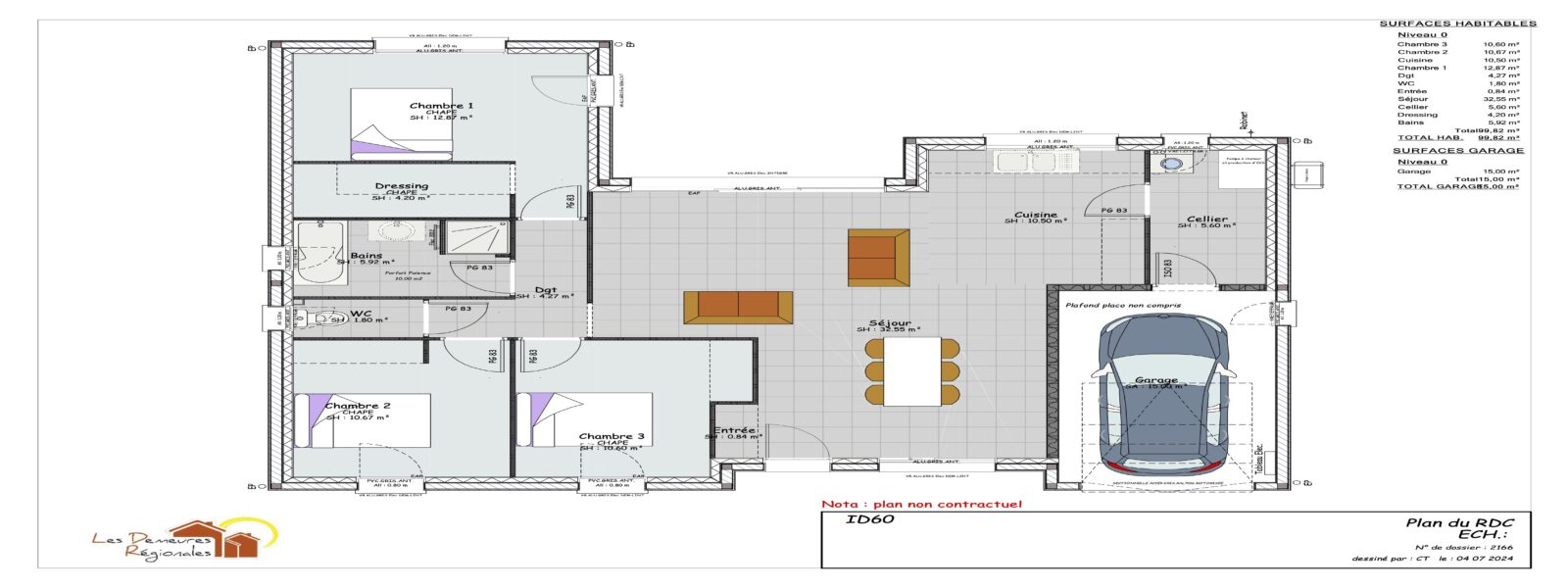
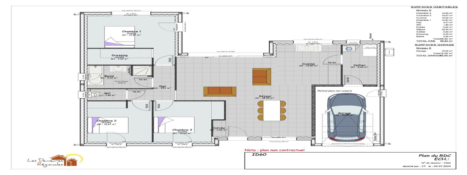
  • ID60 copie.jpg
4
100 m² Terrain de 1500 m² 5 pièces 3 chambres 1 sdb / sde

Superbe projet de construction proche de Villefranche sur Saône

367 900 €
Référence : 4044624

Su la commune de Villeneuve, très beau terrain plat de 1500m2 idéal pour un beau projet de construction

Maison moderne aux dernières normes RE2020

Découvrez cette magnifique maison de plain-pied de 100 m² habitables + 15 m² de garage, offrant des espaces lumineux et fonctionnels. Elle comprend :

Un séjour spacieux de 32,55 m²
Trois chambres (10,60 m², 10,67 m² et 12,87 m²)
Une cuisine de 10,50 m²
Une salle de bains de 5,92 m²
Un cellier, un dressing et des toilettes indépendantes
Un garage de 15,00 m²
Profitez du confort d'une maison aux dernières normes énergétiques RE2020, avec pompe à chaleur et isolation ultra-performante.

Simulation gratuite

Découvrez notre calculateur de prêt immobilier, un outil simple et efficace pour estimer vos mensualités de prêt et votre capacité d'emprunt.

En quelques secondes, découvrez combien vous pouvez emprunter en fonction de vos paramètres.

Utilisez notre calculateur pour planifier votre projet immobilier avec précision et simplicité.

Pour toute question ou conseil, contactez-nous !

Maison à construire 69400 Villefranche-sur-Saône

Agence de Varennes-lès-Mâcon

03 85 59 15 46 746 Champ de la Lié, D906 - 71000 Varennes-lès-Mâcon
Agence de Varennes-lès-Mâcon

Vous aimerez aussi