Superbe projet de construction proche de Villefranche sur Saône
Su la commune de Villeneuve, très beau terrain plat de 1500m2 idéal pour un beau projet de construction
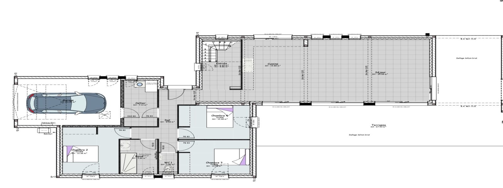
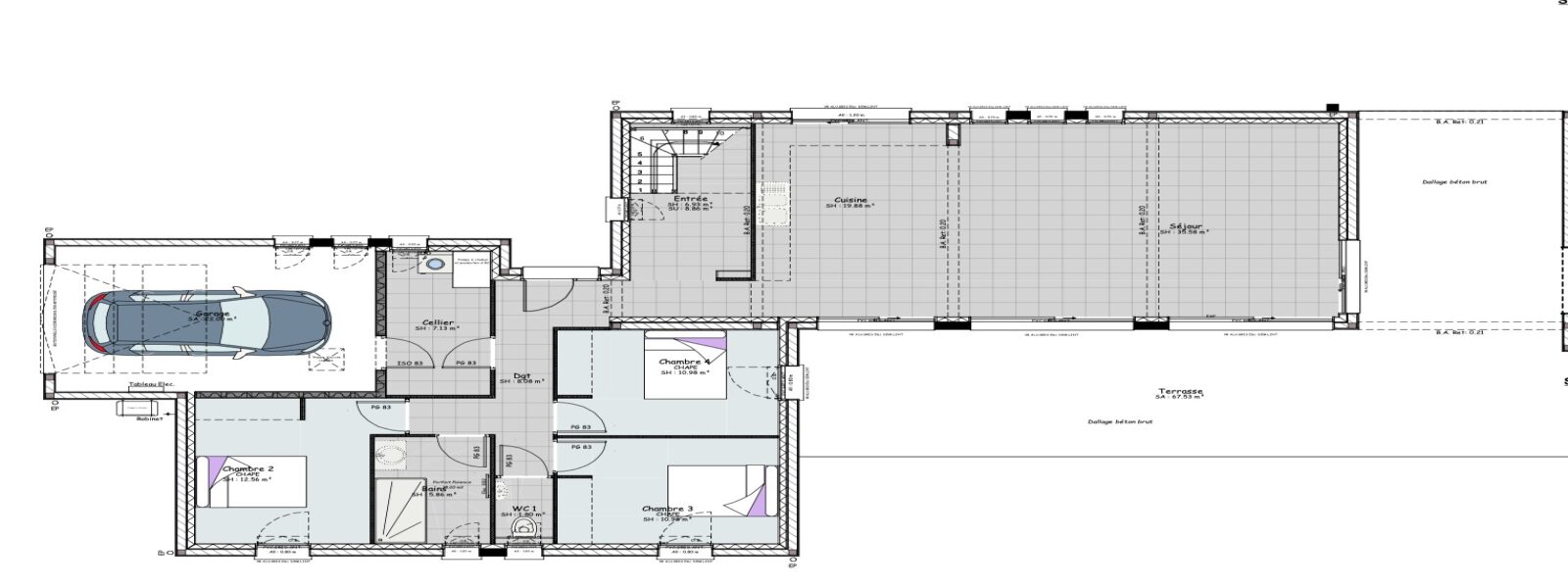
Belle villa d'Architecte, avec des prestations haut de gamme pour cette demeure de 143 m² habitables et son garage de 22 m².
Les 4 grandes baies vitrées donne sur une très grande terrasse de 67 m² dont une partie est couverte.
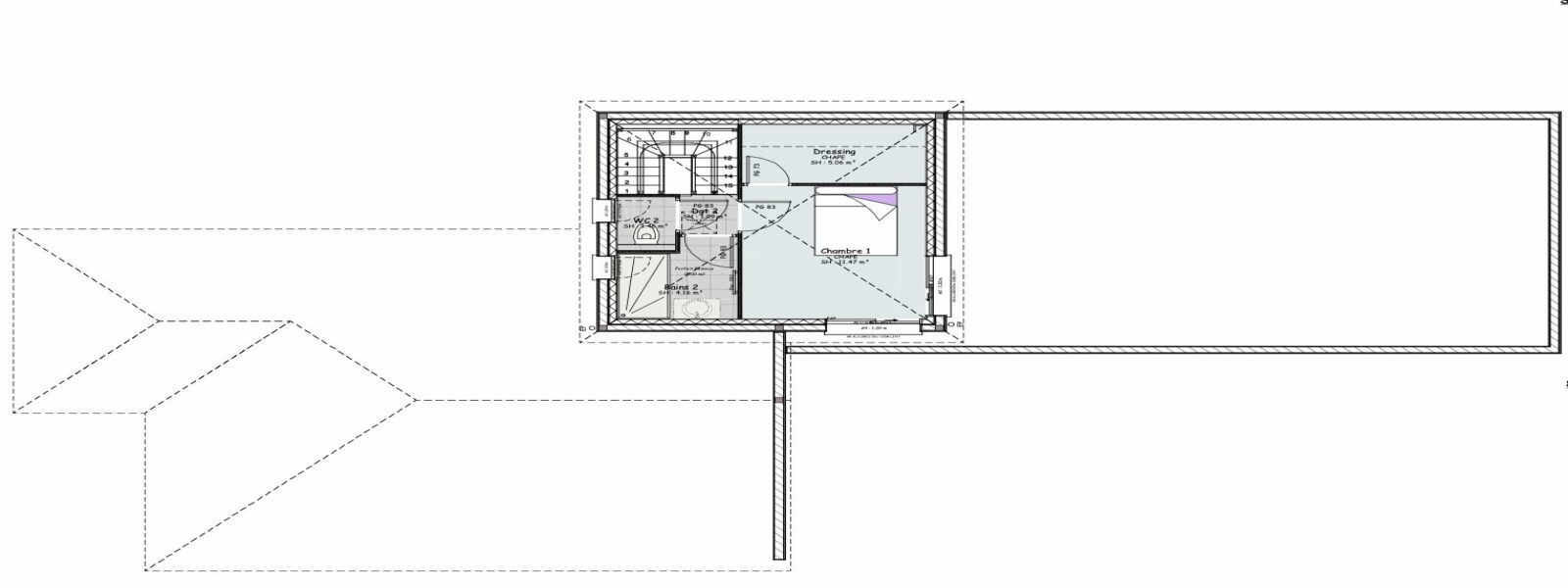
4 chambres dont une qui est une suite parentale de 22 m² situé à l'écart dans la tour composé d'un dressing et d'une salle d'eau privative avec un toilette séparé.
Menuiseries design en RAL7016 (coloris ardoise), porte d'entrée tierce.
Toutes les baies
Garanties et assurances obligatoires incluses (voir détails en agence). Hors raccordements, hors branchements. Hors frais de notaire. Terrain sélectionné et vu pour vous sous réserve de disponibilité et au prix indiqué par notre partenaire foncier.
Simulation gratuite
Découvrez notre calculateur de prêt immobilier, un outil simple et efficace pour estimer vos mensualités de prêt et votre capacité d'emprunt.
En quelques secondes, découvrez combien vous pouvez emprunter en fonction de vos paramètres.
Utilisez notre calculateur pour planifier votre projet immobilier avec précision et simplicité.
Pour toute question ou conseil, contactez-nous !
Agence de Varennes-lès-Mâcon
Vous aimerez aussi
Villa de plain pied sur la commune de St Jean d'Ardière
Superbe projet de construction proche de Villefranche sur Saône