• imageHD2024-07-10_123023.jpg
  • imageHD2024-07-10_020131.jpg
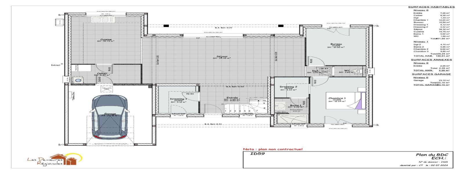
  • Santa Rosa - RDC.jpg
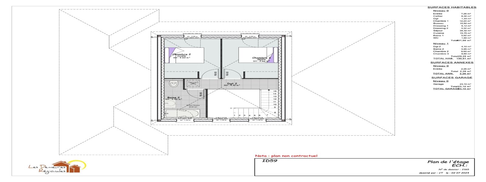
  • Santa Rosa - R+1.jpg
4

SUPERBE PROJET TERRAIN EN LOTISSEMENT LA ROCHE NOIRE

353 900 €
Référence : 4057233

A découvrir sur la commune de la Roche Noire joli terrain de 901 m² dans petit lotissement quartier residentiel au calme.
Terrain plutôt plat tres agréable,viabilisés.
A voir.

Offrez-vous la chance de faire construire cette magnifique maison contemporaine, conçue pour offrir un cadre de vie moderne et confortable. Idéale pour les familles à la recherche d’un projet immobilier alliant élégance et fonctionnalité, cette maison répond aux normes RE 2020 pour un confort optimal et des économies d’énergie.

Caractéristiques Principales:
Surface Habitable : 130,91 m²
Surface Garage : 23,10 m²

Points Forts

Projet Personnalisable : Choisissez vos finitions et matériaux pour une maison qui vous ressemble

Conformité RE 2020 : Normes les plus récentes pour un confort optimal et des économies d’énergie

Espace et Lumière : Pièces spacieuses et lumineuses grâce à de grandes ouvertures

Chauffage et Eau Chaude Sanitaire : Pompe à chaleur Extensa Duo, connectée de dernière génération

Aménagement Extérieur : Possibilité de jardin paysagé idéal pour les moments de détente

Grand Garage : 23,10 m² pour abriter vos véhicules et plus encore

Suite Parentale : Située au rez-de-chaussée et séparée du coin des enfants pour plus de tranquillité

Volumes Superbes : Vide sur entrée via la mezzanine offrant des volumes impressionnants

Domotique : Volets roulants et motorisation de la porte de garage connectés pour un contrôle à distance (Somfy).

Avantages de la Construction
Garantie Décennale, Assurance Dommage à l’Ouvrage, Garantie de Livraison à Prix et Délais Convenus : Prix ferme et définitif (non révisable)

Personnalisation : Adaptation du plan selon vos besoins et envies
Contact

Pour plus d’informations ou pour organiser un rendez-vous, n’hésitez pas à nous contacter.

Ne manquez pas cette opportunité unique de faire construire la maison de vos rêves selon vos spécifications !

Simulation gratuite

Découvrez notre calculateur de prêt immobilier, un outil simple et efficace pour estimer vos mensualités de prêt et votre capacité d'emprunt.

En quelques secondes, découvrez combien vous pouvez emprunter en fonction de vos paramètres.

Utilisez notre calculateur pour planifier votre projet immobilier avec précision et simplicité.

Pour toute question ou conseil, contactez-nous !

Maison à construire 63800 La Roche-Noire

Agence de Cournon-d’Auvergne

04 73 25 30 32 36 rue de Sarliève - 63800 Cournon-d'Auvergne
Agence de Cournon-d’Auvergne