Terrain à bâtir à Digoin – Parcelle plate
Vous rêvez de faire construire votre maison à Digoin ? Ce terrain à bâtir situé dans un petit lotissement calme est l’opportunité idéale pour concrétiser votre projet. Borné et viabilisé.
? Parcelle plate et de forme carrée : implantation facile
? Environnement résidentiel agréable
? Proximité des commodités (commerces, écoles, services)
? Accès rapide aux principaux axes
En tant que constructeur de maisons individuelles, Les Demeures Régionales vous accompagne de A à Z : étude personnalisée, plans sur mesure, démarches administratives.
Contact : Les Demeures Régionales Paray Le Monial
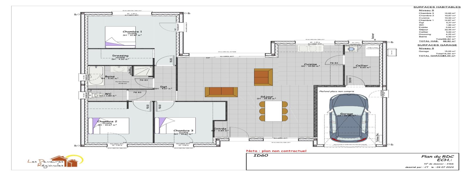
Maison moderne aux dernières normes RE2020
Découvrez cette magnifique maison de plain-pied de 100 m² habitables + 15 m² de garage, offrant des espaces lumineux et fonctionnels. Elle comprend :
Un séjour spacieux de 32,55 m²
Trois chambres (10,60 m², 10,67 m² et 12,87 m²)
Une cuisine de 10,50 m²
Une salle de bains de 5,92 m²
Un cellier, un dressing et des toilettes indépendantes
Un garage de 15,00 m²
Profitez du confort d'une maison aux dernières normes énergétiques RE2020, avec pompe à chaleur et isolation ultra-performante.
Garanties et assurances obligatoires incluses (voir détails en agence). Hors raccordements, hors branchements. Hors frais de notaire. Terrain sélectionné et vu pour vous sous réserve de disponibilité et au prix indiqué par notre partenaire foncier.
Simulation gratuite
Découvrez notre calculateur de prêt immobilier, un outil simple et efficace pour estimer vos mensualités de prêt et votre capacité d'emprunt.
En quelques secondes, découvrez combien vous pouvez emprunter en fonction de vos paramètres.
Utilisez notre calculateur pour planifier votre projet immobilier avec précision et simplicité.
Pour toute question ou conseil, contactez-nous !
Agence de Paray-le-Monial
Vous aimerez aussi
Terrain à bâtir à Paray-le-Monial – Cadre champêtre et calme
DEVENEZ PROPRIÉTAIRE À DIGOIN – À PARTIR D’UN PETIT BUDGET !