• facade arriere.jpg
  • facade avant.jpg
  • TERRAIN ST ROMAIN SOUS GOURDON 71.jpg
  • ID60 copie.jpg
4
100 m² Terrain de 940 m² 5 pièces 3 chambres 1 sdb / sde

Terrain à bâtir – Cadre naturel de qualité – Saint-Romain-sous-Gourdon

228 000 €
Référence : 3992952

Dans un environnement verdoyant et paisible, découvrez ce terrain offrant un joli cadre naturel sur la commune recherchée de Saint-Romain-sous-Gourdon.
Parcelle bornée et viabilisée !

Cette parcelle constitue une opportunité idéale pour un projet de construction sur mesure avec Les Demeures Régionales. Le cadre, à la fois calme et agréable, se prête parfaitement à la réalisation d’une maison alliant confort, élégance et qualité de vie.

Une belle opportunité pour concrétiser un projet de vie dans un environnement privilégié.

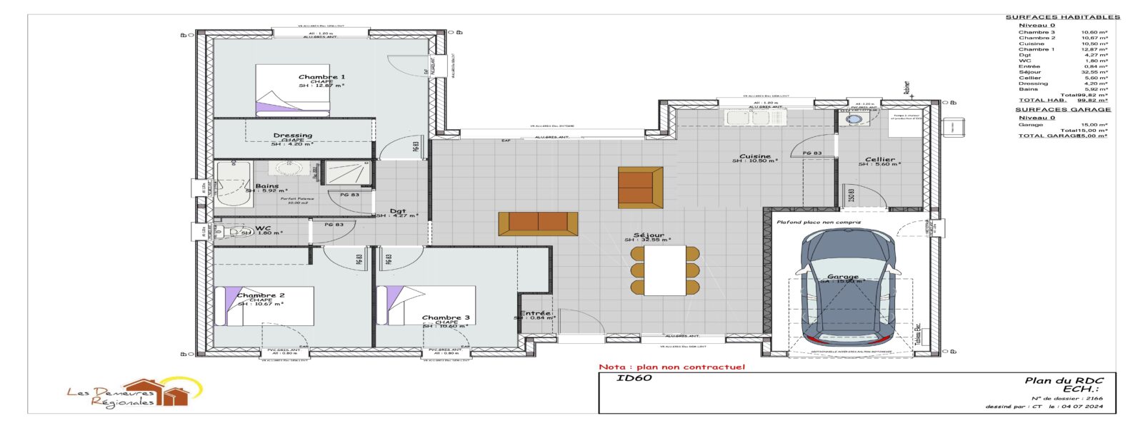
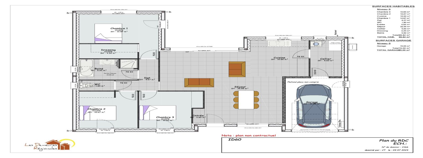
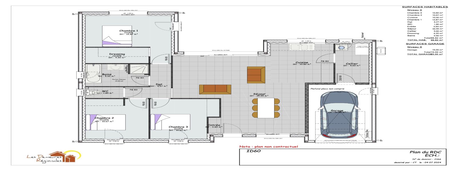
Maison moderne aux dernières normes RE2020

Découvrez cette magnifique maison de plain-pied de 100 m² habitables + 15 m² de garage, offrant des espaces lumineux et fonctionnels. Elle comprend :

Un séjour spacieux de 32,55 m²
Trois chambres (10,60 m², 10,67 m² et 12,87 m²)
Une cuisine de 10,50 m²
Une salle de bains de 5,92 m²
Un cellier, un dressing et des toilettes indépendantes
Un garage de 15,00 m²
Profitez du confort d'une maison aux dernières normes énergétiques RE2020, avec pompe à chaleur et isolation ultra-performante.

Simulation gratuite

Découvrez notre calculateur de prêt immobilier, un outil simple et efficace pour estimer vos mensualités de prêt et votre capacité d'emprunt.

En quelques secondes, découvrez combien vous pouvez emprunter en fonction de vos paramètres.

Utilisez notre calculateur pour planifier votre projet immobilier avec précision et simplicité.

Pour toute question ou conseil, contactez-nous !

Maison à construire 71230 Saint-Romain-sous-Gourdon

Agence de Paray-le-Monial

03 58 42 09 56 2 bis boulevard du Collège - 71600 Paray-le-Monial
Agence de Paray-le-Monial