• facade arriere.jpg
  • facade avant.jpg
  • Terrain St Vallier.jpg
  • ID60 copie.jpg
4
100 m² Terrain de 2214 m² 5 pièces 3 chambres 1 sdb / sde

Terrain à bâtir – Saint-Vallier (71) – Rue calme

230 000 €
Référence : 3992942

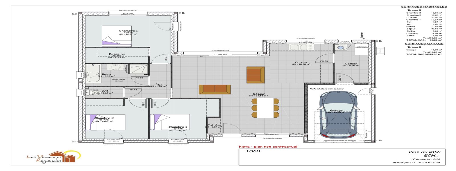
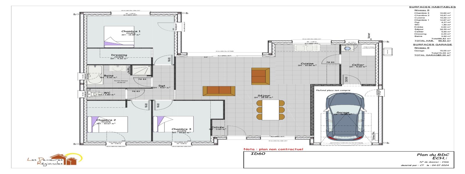
Maison moderne aux dernières normes RE2020

Découvrez cette magnifique maison de plain-pied de 100 m² habitables + 15 m² de garage, offrant des espaces lumineux et fonctionnels. Elle comprend :

Un séjour spacieux de 32,55 m²
Trois chambres (10,60 m², 10,67 m² et 12,87 m²)
Une cuisine de 10,50 m²
Une salle de bains de 5,92 m²
Un cellier, un dressing et des toilettes indépendantes
Un garage de 15,00 m²
Profitez du confort d'une maison aux dernières normes énergétiques RE2020, avec pompe à chaleur et isolation ultra-performante.

Simulation gratuite

Découvrez notre calculateur de prêt immobilier, un outil simple et efficace pour estimer vos mensualités de prêt et votre capacité d'emprunt.

En quelques secondes, découvrez combien vous pouvez emprunter en fonction de vos paramètres.

Utilisez notre calculateur pour planifier votre projet immobilier avec précision et simplicité.

Pour toute question ou conseil, contactez-nous !

Maison à construire 71230 Saint-Vallier

Agence de Paray-le-Monial

03 58 42 09 56 2 bis boulevard du Collège - 71600 Paray-le-Monial
Agence de Paray-le-Monial

Vous aimerez aussi