• imageHD2023-06-08_031859.jpg
  • terrain.jpg
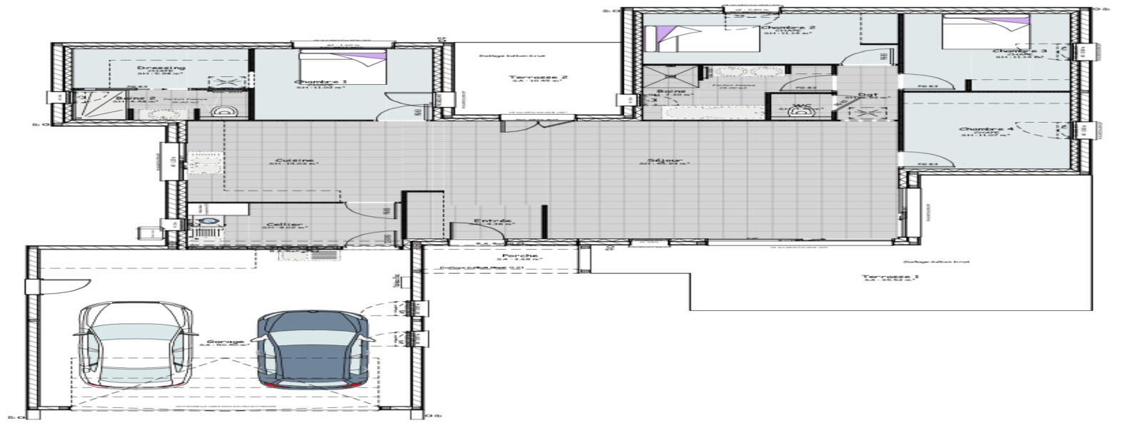
  • RDC.png
3
218 m² Terrain de 2512 m² 6 pièces 4 chambres 2 sdb / sde

Terrain d’exception sur Mâcon

598 600 €
Référence : 4048058

Si vous recherchez un projet d'exception, vous trouverez dans ce terrain tous les atouts pour le réussir

Demeure d'Exception, à Construire avec 4 Chambres, Suite Parentale et plus encore !

Vous recherchez la maison parfaite pour votre famille. Ne cherchez plus ! Cette maison à construire offre tout ce que vous désirez, avec des caractéristiques exceptionnelles.

Caractéristiques clés :

4 chambres, dont une luxueuse suite parentale avec salle d'eau privative et dressing.
Un comble aménageable au-dessus du garage, créant un grenier de 28m2 supplémentaires pour répondre à vos besoins de stockage ou de loisirs.
Un double garage spacieux de 50m2 pour abriter vos véhicules et plus encore.
Belles prestations, y compris une pompe à chaleur avec plafond rayonnant et kit rafraîchissant pour un confort thermique optimal.
Deux magnifiques terrasses, l'une de 11m2 et l'autre de 35m2, pour profiter des extérieurs à tout moment.
Un espace parental séparé du coin des enfants, offrant intimité et tranquillité à tous.
Cette maison à construire est la toile vierge parfaite pour créer votre havre de paix personnalisé. Imaginez-vous ici, créez des souvenirs inoubliables et faites de cette maison le foyer de vos rêves !

Simulation gratuite

Découvrez notre calculateur de prêt immobilier, un outil simple et efficace pour estimer vos mensualités de prêt et votre capacité d'emprunt.

En quelques secondes, découvrez combien vous pouvez emprunter en fonction de vos paramètres.

Utilisez notre calculateur pour planifier votre projet immobilier avec précision et simplicité.

Pour toute question ou conseil, contactez-nous !

Maison à construire 71000 Mâcon

Agence de Varennes-lès-Mâcon

03 85 59 15 46 746 Champ de la Lié, D906 - 71000 Varennes-lès-Mâcon
Agence de Varennes-lès-Mâcon

Vous aimerez aussi