• facade arriere.jpg
  • facade avant.jpg
  • vue terrain.jpg
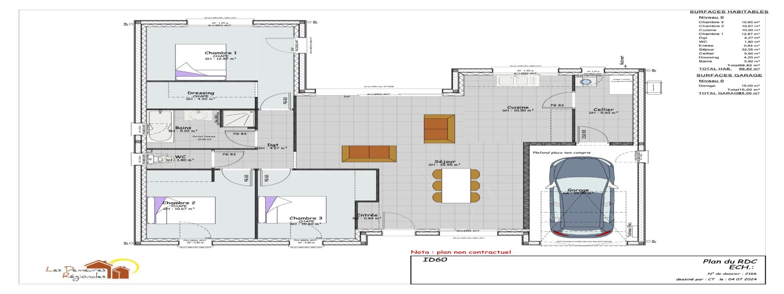
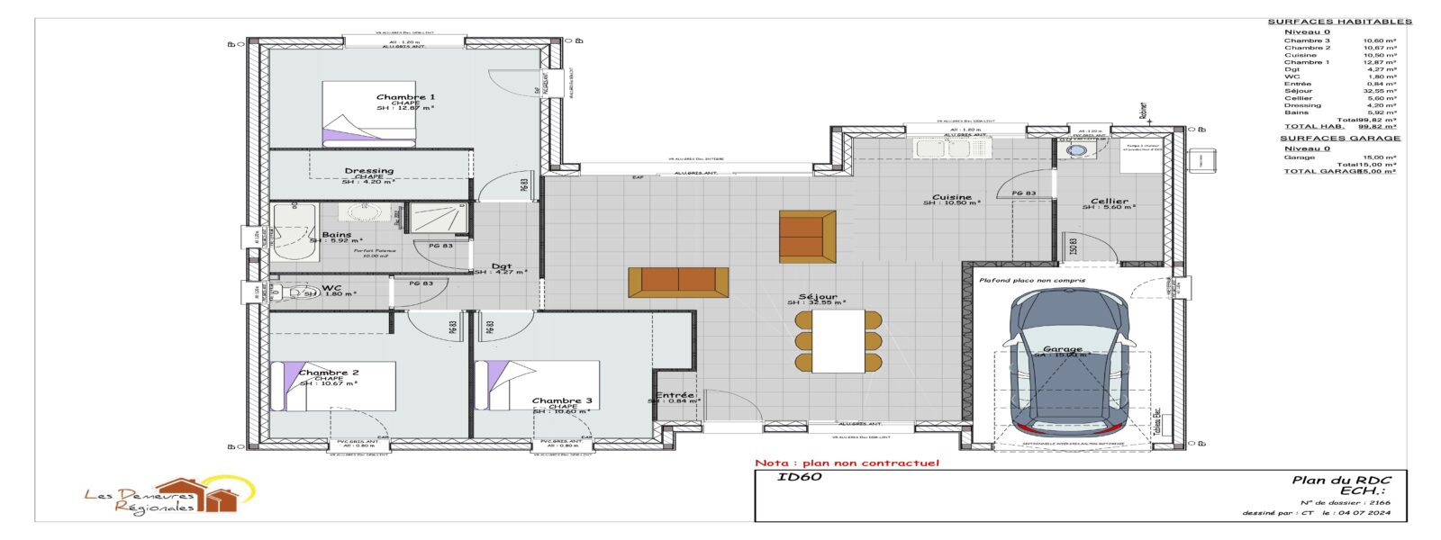
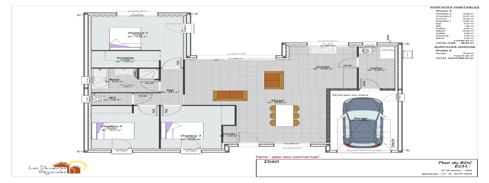
  • ID60 copie.jpg
4

Terrain plat et viabilisé – 834 m2 limitrophe Vendat

235 900 €
Référence : 3707642

L’environnement calme et résidentiel permet d’envisager un beau projet de construction, aux portes de Vendat.

Il se trouve donc toutes les commodités, écoles et transports scolaires à proximité.

Dans ce cadre verdoyant il est facile de projeter sa vie de famille ou d’investir dans un projet locatif.

Le terrain est viabilisé, ne reste qu’à installer son propre assainissement. Un bâti en brique est déjà présent sur le terrain, pour envisager un grand atelier, un garage ou une annexe à votre résidence.

Contactez nous sans plus attendre pour profiter de cette opportunité!

Maison moderne aux dernières normes RE2020

Découvrez cette magnifique maison de plain-pied de 100 m² habitables + 15 m² de garage, offrant des espaces lumineux et fonctionnels. Elle comprend :

Un séjour spacieux de 32,55 m²
Trois chambres (10,60 m², 10,67 m² et 12,87 m²)
Une cuisine de 10,50 m²
Une salle de bains de 5,92 m²
Un cellier, un dressing et des toilettes indépendantes
Un garage de 15,00 m²
Profitez du confort d’une maison aux dernières normes énergétiques RE2020, avec pompe à chaleur et isolation ultra-performante.

Simulation gratuite

Découvrez notre calculateur de prêt immobilier, un outil simple et efficace pour estimer vos mensualités de prêt et votre capacité d'emprunt.

En quelques secondes, découvrez combien vous pouvez emprunter en fonction de vos paramètres.

Utilisez notre calculateur pour planifier votre projet immobilier avec précision et simplicité.

Pour toute question ou conseil, contactez-nous !

Maison à construire 03110 Saint-Rémy-en-Rollat

Agence de Bellerive-sur-Allier

04 70 97 66 02 93 avenue de Vichy - 03700 Bellerive-sur-Allier
Agence de Bellerive-sur-Allier