VEYRE MONTON localisation idéale
A quelques minutes du centre de Veyre-Monton,à proximité immédiate des services commerces,écoles,accés autoroutier,venez découvrir cette magnifique parcelle clotuée sur un coté. Dans un futur lotissement residentiel laissez vous seduire par ce cadre avec plantation de haies arborés,stationnement végétalisés..
Imaginez vous dans cet endroit pour votre futur projet.
N'hésitez à nous contacter pour échanger ensemble sur la réalisation de votre maison avec les Demeures Régionales COURNON.
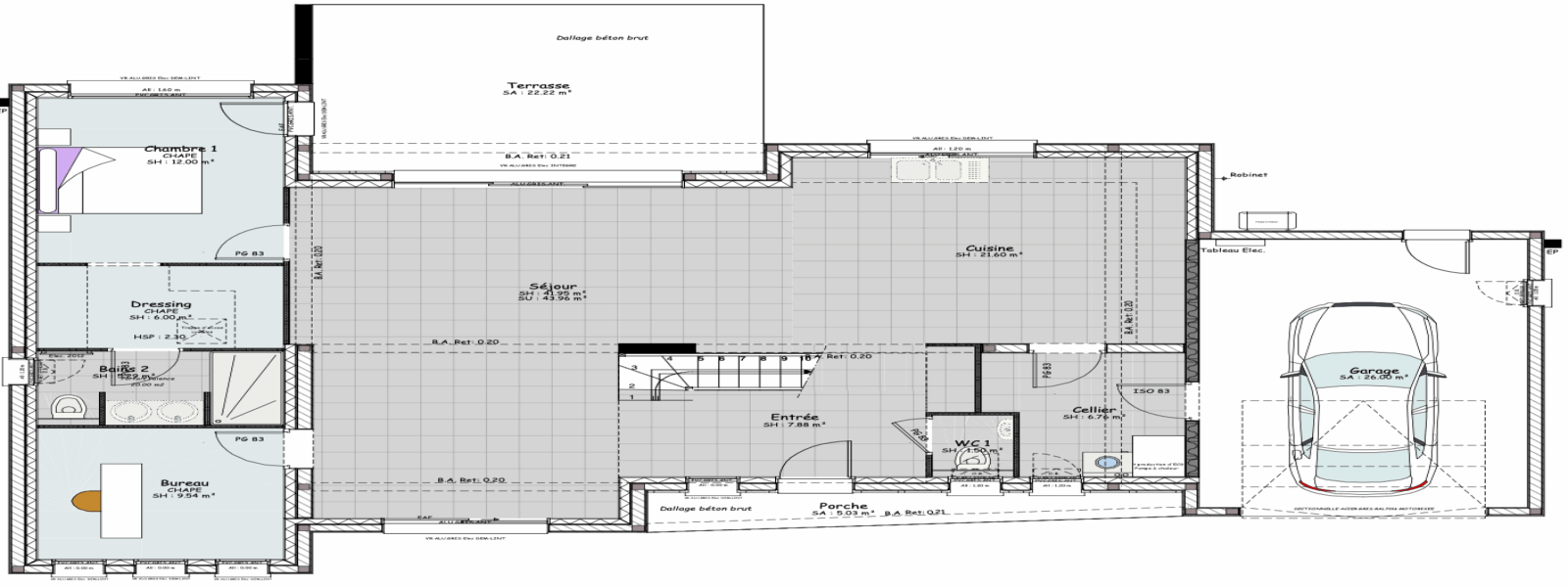
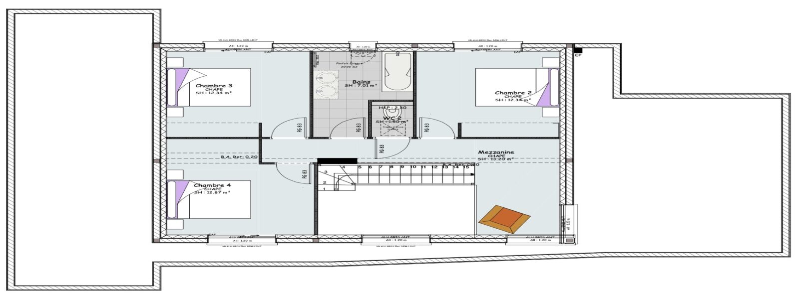
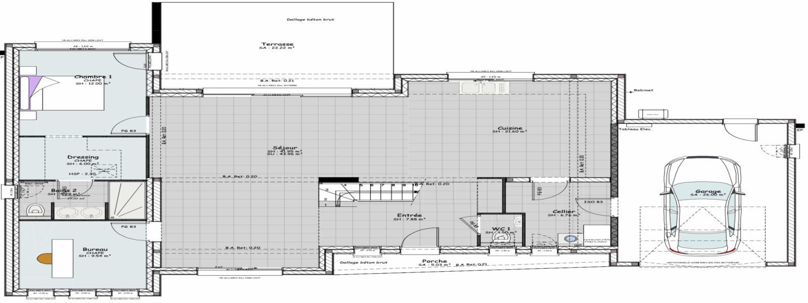
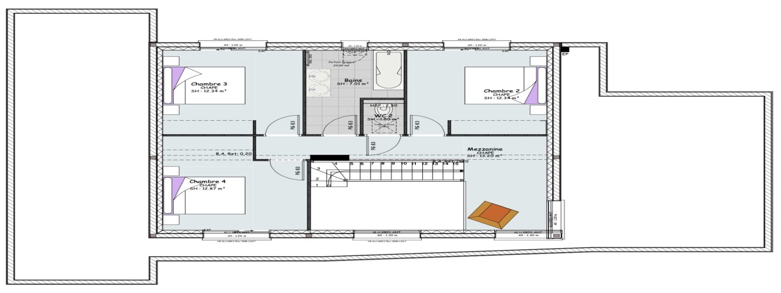
Superbe Maison à Construire avec 4 Chambres, Bureau et Mezzanine
Vous rêvez de votre maison idéale? Voici une opportunité unique de construire la maison de vos rêves! Cette maison contemporaine allie espace, confort et élégance pour répondre à tous vos besoins.
Caractéristiques principales:
4 chambres spacieuses pour toute la famille.
Un bureau pour travailler confortablement depuis chez vous.
Une mezzanine pour un espace polyvalent.
Un vide sur entrée qui ajoute une touche d'originalité.
Un grand garage communicant avec un cellier pratique.
Une cuisine ouverte, idéale pour les amateurs de cuisine et de convivialité.
Construction:
Cette maison est construite en brique, garantissant solidité et durabilité. Le toit plat ajoute une touche moderne et élégante à l'ensemble.
Prestations haut de gamme:
Pompe à chaleur avec plafond rayonnant pour un confort thermique optimal toute l'année.
Kit rafraîchissant pour les journées chaudes d'été.
Garanties et assurances obligatoires incluses (voir détails en agence). Hors raccordements, hors branchements. Hors frais de notaire. Terrain sélectionné et vu pour vous sous réserve de disponibilité et au prix indiqué par notre partenaire foncier.
Simulation gratuite
Découvrez notre calculateur de prêt immobilier, un outil simple et efficace pour estimer vos mensualités de prêt et votre capacité d'emprunt.
En quelques secondes, découvrez combien vous pouvez emprunter en fonction de vos paramètres.
Utilisez notre calculateur pour planifier votre projet immobilier avec précision et simplicité.
Pour toute question ou conseil, contactez-nous !
Agence de Cournon-d’Auvergne
Vous aimerez aussi
MAISON DE CARACTERE TERRAIN LOTISSEMENT VEYRE MONTON
Magnifique maison à découvrir sur terrain Saint Julien de Coppel