Villa 4 chambres – 172 m² + 53m2 de garage à Avermes
Au cœur d’un petit lotissement privé composé de seulement 3 lots, découvrez ce terrain de 987 m² à Avermes. Idéalement situé, ce terrain offre une opportunité unique de construire la maison de vos rêves dans un environnement exclusif et tranquille.
Entièrement viabilisé, ce terrain spacieux vous offre un cadre de vie privilégié, à proximité des commodités locales tout en préservant votre intimité. Ne manquez pas cette chance de réaliser votre projet immobilier dans un lotissement restreint et recherché.
Contactez-nous dès aujourd’hui pour organiser une visite sur rendez-vous et commencez à planifier votre futur chez-vous dès maintenant !
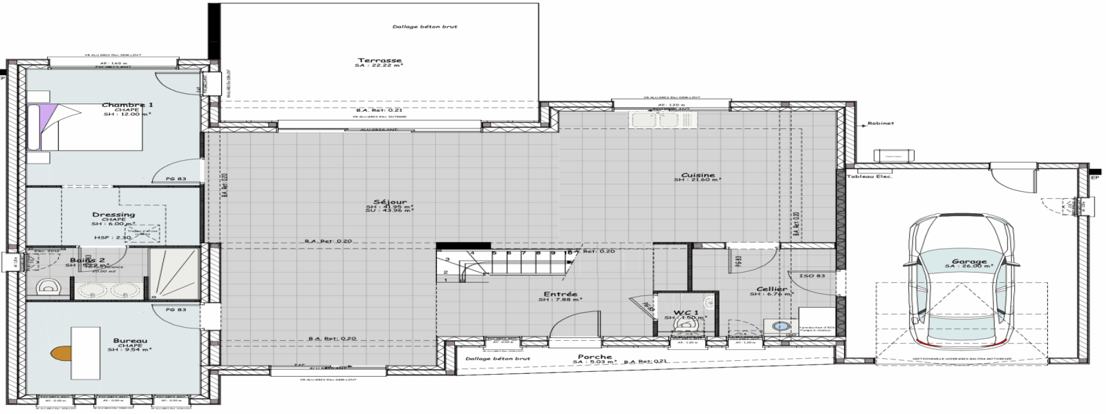
Superbe Maison à Construire avec 4 Chambres, Bureau et Mezzanine
Vous rêvez de votre maison idéale? Voici une opportunité unique de construire la maison de vos rêves! Cette maison contemporaine allie espace, confort et élégance pour répondre à tous vos besoins.
Caractéristiques principales:
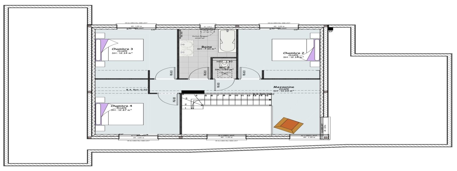
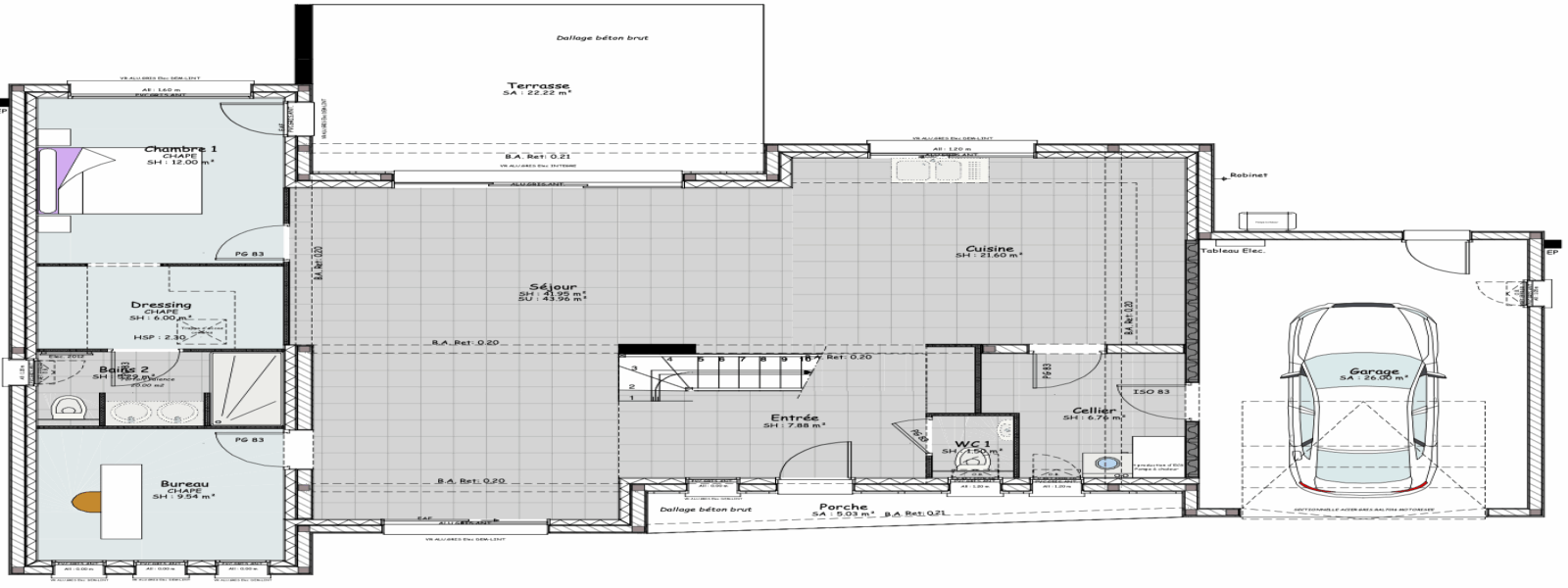
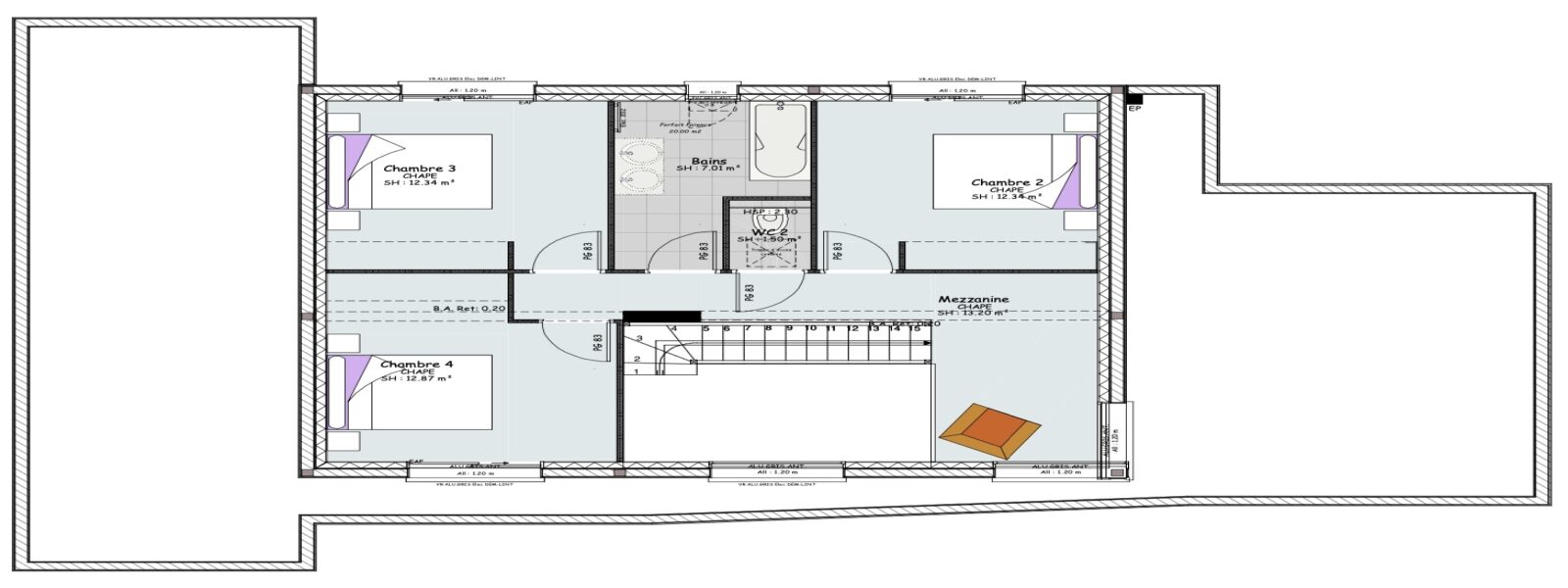
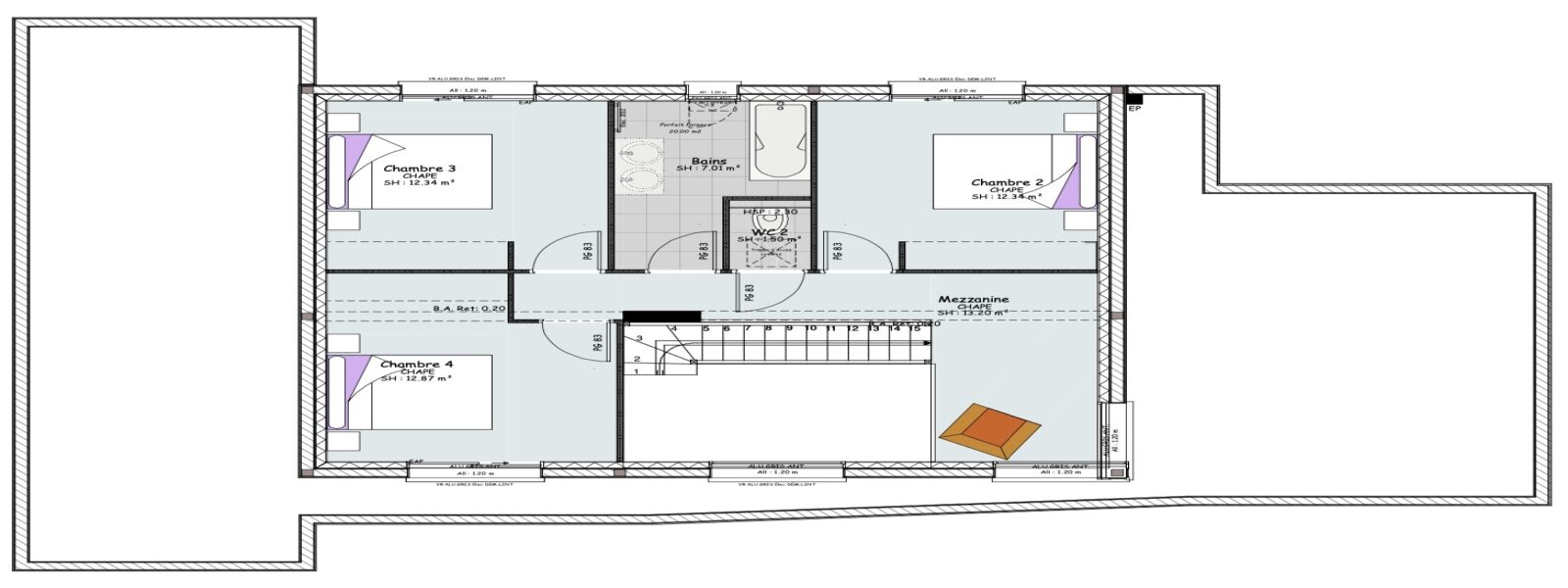
4 chambres spacieuses pour toute la famille.
Un bureau pour travailler confortablement depuis chez vous.
Une mezzanine pour un espace polyvalent.
Un vide sur entrée qui ajoute une touche d’originalité.
Un grand garage communicant avec un cellier pratique.
Une cuisine ouverte, idéale pour les amateurs de cuisine et de convivialité.
Construction:
Cette maison est construite en brique, garantissant solidité et durabilité. Le toit plat ajoute une touche moderne et élégante à l’ensemble.
Prestations haut de gamme:
Pompe à chaleur avec plafond rayonnant pour un confort thermique optimal toute l’année.
Kit rafraîchissant pour les journées chaudes d’été.
Garanties et assurances obligatoires incluses (voir détails en agence). Hors raccordements, hors branchements. Hors frais de notaire. Terrain sélectionné et vu pour vous sous réserve de disponibilité et au prix indiqué par notre partenaire foncier.
Simulation gratuite
Découvrez notre calculateur de prêt immobilier, un outil simple et efficace pour estimer vos mensualités de prêt et votre capacité d'emprunt.
En quelques secondes, découvrez combien vous pouvez emprunter en fonction de vos paramètres.
Utilisez notre calculateur pour planifier votre projet immobilier avec précision et simplicité.
Pour toute question ou conseil, contactez-nous !