• LEA exterieur avant.jpg
  • LEA exterieur arriere.jpg
  • LEA axo RDC.jpg
  • LEA axo sous sol.jpg
  • LEA interieur.jpg
  • LEA plan de cellule RDC.jpg
6
105 m² Terrain de 364 m² 5 pièces 3 chambres 2 sdb / sde

VOTRE PROJET DE CONSTRUCTION SUR TERRAIN A BATIR VEYRE MONTON

289 800 €
Référence : 3717643

Nouveau lotissement a decouvrir sur Veyre Monton terrain a batir ,viabilisé,proche des commodités.Quartier calme et résidentiel.
Imaginez votre projet avec nous .

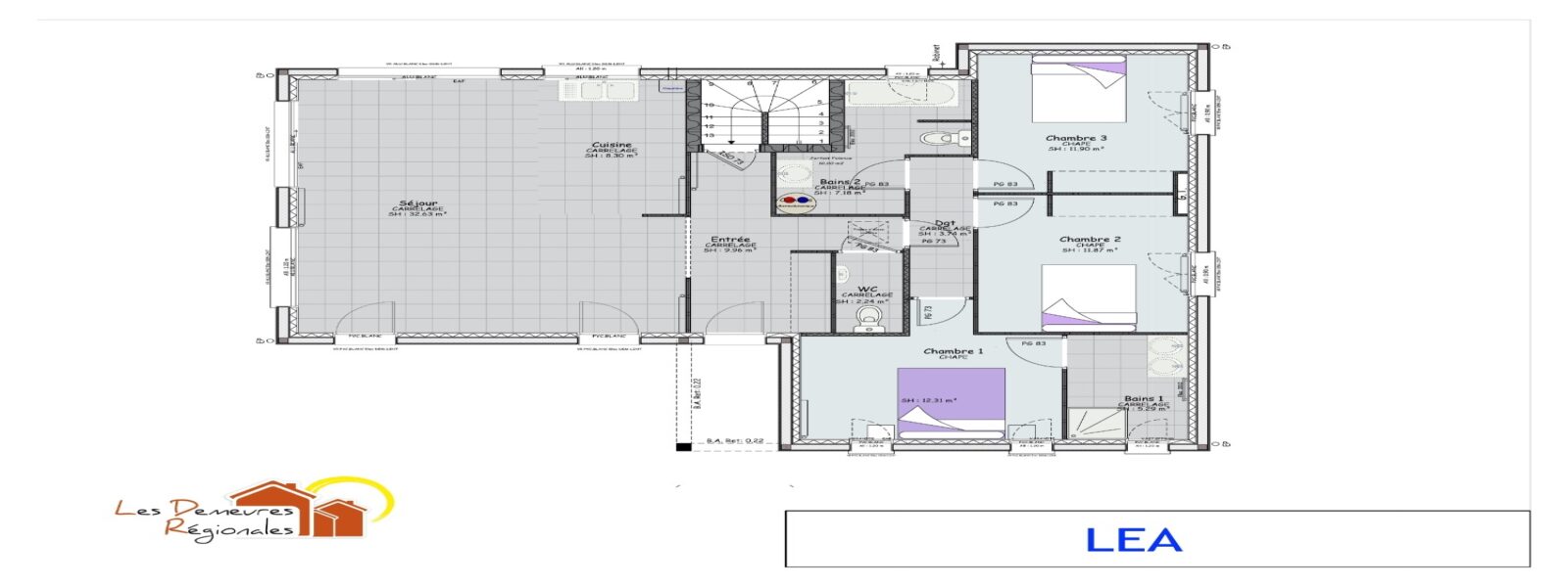
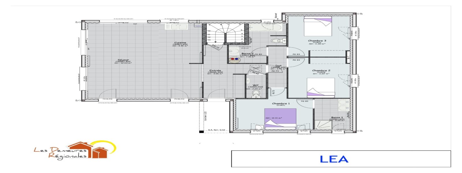
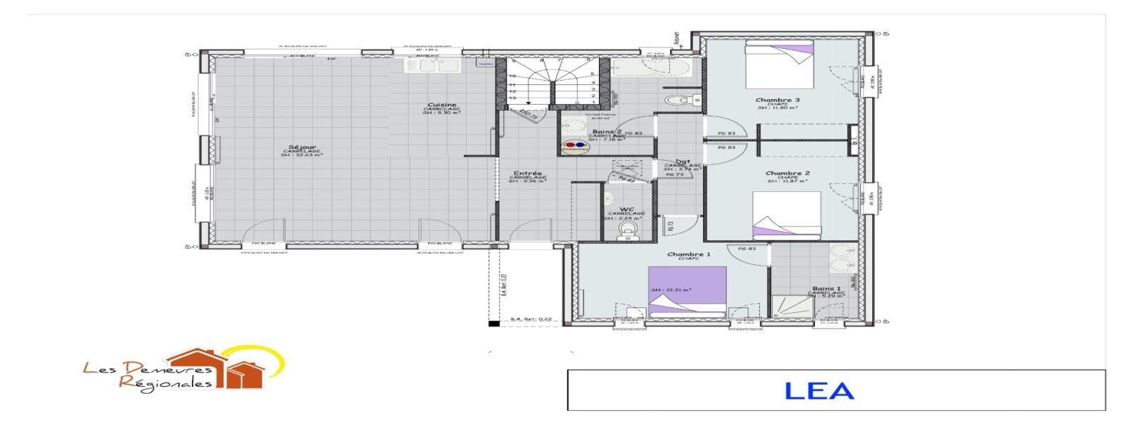
Le modèle LEA a une superficie habitable de 105 m².
Au rez-de-chaussée une grande entrée dessert un vaste séjour avec cuisine ouverte le tout d'une superficie de plus de 40 m².
Dans la partie nuit se trouvent trois grandes chambres dont une avec salle d'eau privative équipée d'une douche à l'italienne, un wc et une salle de bain avec baignoire et wc suspendu.
Un grand sous-sol de 140 m² peut recevoir plusieurs véhicules.
Deux portes de garage sectionnelle motorisées, volets roulants électriques, chauffage PAC air/eau et plafond rayonnant basse température avec kit de raffraichissement, baie vitrée à galandage, domotique SOMFY, sont des exemples des prestations de ce modèle.
À noter que vous pouvez personnaliser l'ensemble des prestations et finitions.

Prix non contractuel et donné à titre indicatif. Il s’entend hors raccordement, adaptation spéciale au sol et à l’urbanisme en fonction du lieu de construction déclaré et de ses contraintes techniques. Ce prix inclus un chauffage RE2020 PAC air/eau. Les revêtements de murs, sols des chambres et plafonds sont optionnels. L'assurance Dommage Ouvrage est comprise dans le prix.

Simulation gratuite

Découvrez notre calculateur de prêt immobilier, un outil simple et efficace pour estimer vos mensualités de prêt et votre capacité d'emprunt.

En quelques secondes, découvrez combien vous pouvez emprunter en fonction de vos paramètres.

Utilisez notre calculateur pour planifier votre projet immobilier avec précision et simplicité.

Pour toute question ou conseil, contactez-nous !

Maison à construire 63960 Veyre-Monton

Agence de Cournon-d’Auvergne

04 73 25 30 32 36 rue de Sarliève - 63800 Cournon-d'Auvergne
Agence de Cournon-d’Auvergne

Vous aimerez aussi